audi Workshop Repair Guides

Audi Workshop Service and Repair Manuals

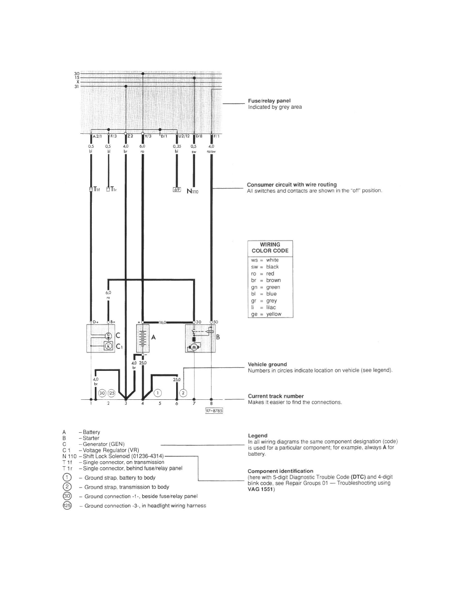
Wiring Diagram Layout|Page 1514 > < Power Door Lock Switch|Service and Repair
Page 1
background image

Power Mirror Switch: Diagram Information and Instructions
Wiring Diagram Layout

Wiring Diagram Layout

Wiring Diagram Layout|Page 1514 > < Power Door Lock Switch|Service and Repair