Audi Workshop Service and Repair Manuals
HOME
FEATURES
MENU
INDEX
ABOUT US
Wiring Diagram Layout|Page 2112 >
< LED Test Light|Page 2105
A4 Quattro Sedan L4-1.8L Turbo (ATW) (2000)
Sensors and Switches
Sensors and Switches - Engine
Oil Level Sensor
Component Information
Diagrams
Diagram Information and Instructions
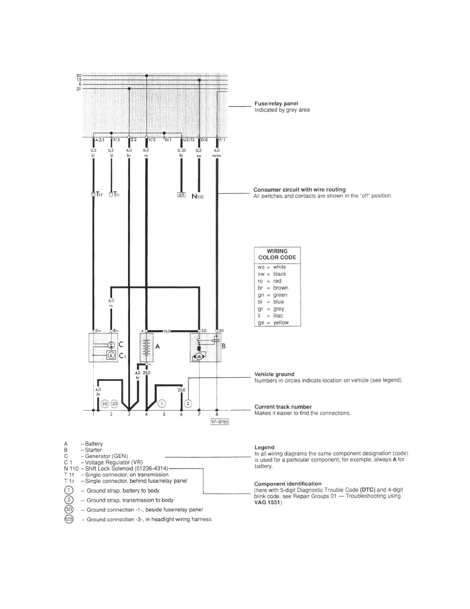
Wiring Diagram Layout
Page 1
Oil Level Sensor: Diagram Information and Instructions
Wiring Diagram Layout
Wiring Diagram Layout
Sensors and Switches
Sensors and Switches - Engine
Oil Level Sensor
Component Information
Diagrams
Diagram Information and Instructions
Wiring Diagram Layout
Wiring Diagram Layout|Page 2112 >
< LED Test Light|Page 2105