audi Workshop Repair Guides

Audi Workshop Service and Repair Manuals

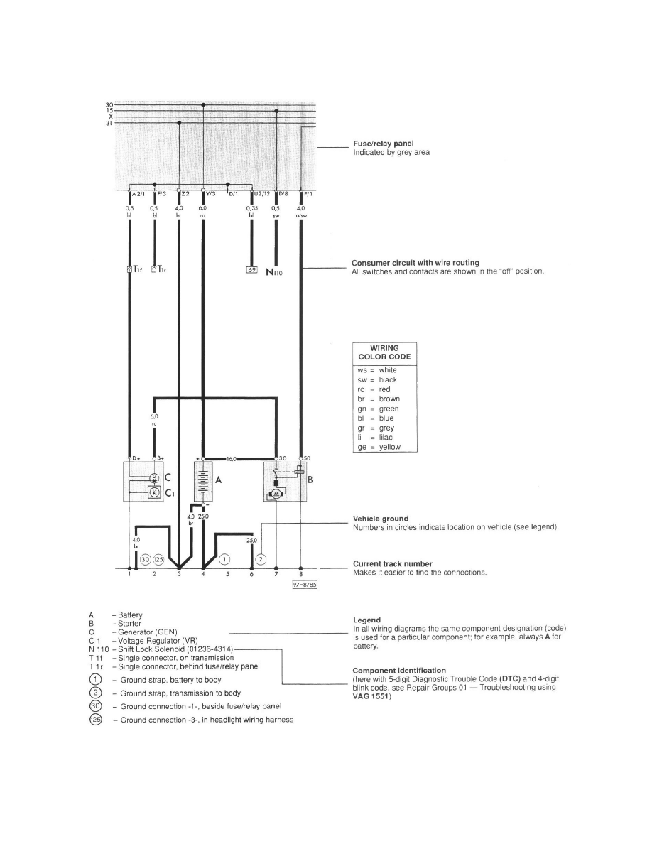
Wiring Diagram Layout|Page 1132 > < Sender For Outlet Temperature, Center -G191-|Page 1128
Page 1
background image

Discharge Air Temperature Sensor / Switch: Diagram Information and Instructions
Wiring Diagram Layout

Wiring Diagram Layout

Wiring Diagram Layout|Page 1132 > < Sender For Outlet Temperature, Center -G191-|Page 1128