Audi Workshop Service and Repair Manuals
HOME
FEATURES
MENU
INDEX
ABOUT US
Wiring Diagram Layout|Page 1689 >
< Engine Speed (RPM) Sensor -G28-, Checking|Page 1683
A4 Quattro Sedan L4-1.8L Turbo (AWM) (2001)
Sensors and Switches
Sensors and Switches - Powertrain Management / Sensors and Switches - Computers and Control Systems
Fuel Level Sensor
Component Information
Diagrams
Diagram Information and Instructions
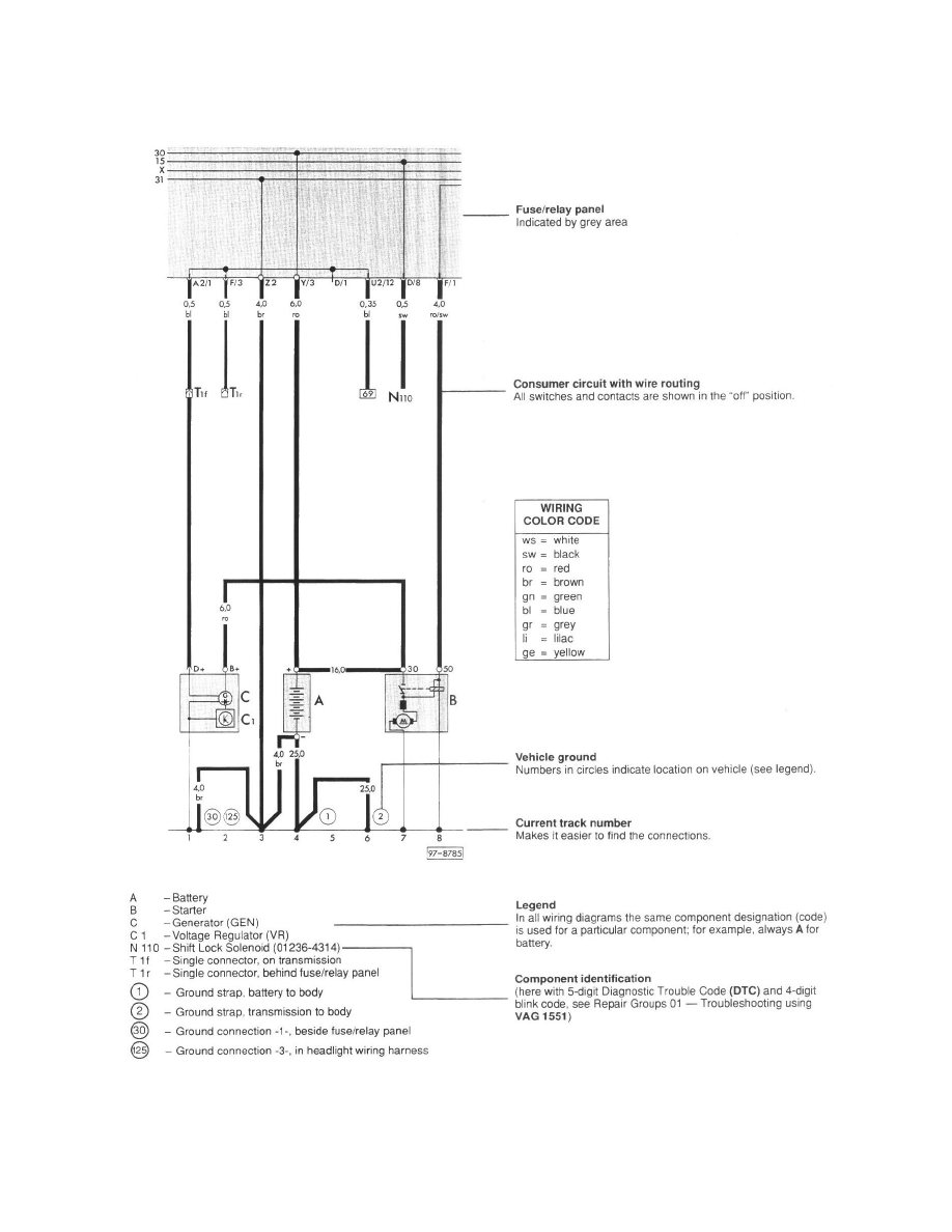
Wiring Diagram Layout
Page 1
Fuel Level Sensor: Diagram Information and Instructions
Wiring Diagram Layout
Wiring Diagram Layout
Sensors and Switches
Sensors and Switches - Powertrain Management / Sensors and Switches - Computers and Control Systems
Fuel Level Sensor
Component Information
Diagrams
Diagram Information and Instructions
Wiring Diagram Layout
Wiring Diagram Layout|Page 1689 >
< Engine Speed (RPM) Sensor -G28-, Checking|Page 1683