audi Workshop Repair Guides

Audi Workshop Service and Repair Manuals

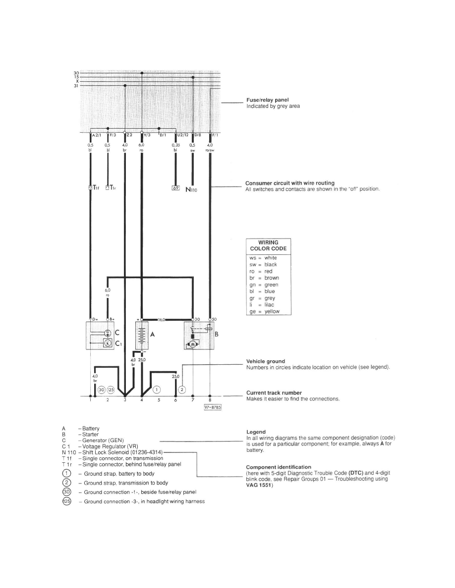
Wiring Diagram Layout|Page 5238 > < Intake Manifold|Specifications|Page 5231
Page 1
background image

Oil Temperature Gauge: Diagram Information and Instructions
Wiring Diagram Layout

Wiring Diagram Layout

Wiring Diagram Layout|Page 5238 > < Intake Manifold|Specifications|Page 5231