audi Workshop Repair Guides

Audi Workshop Service and Repair Manuals

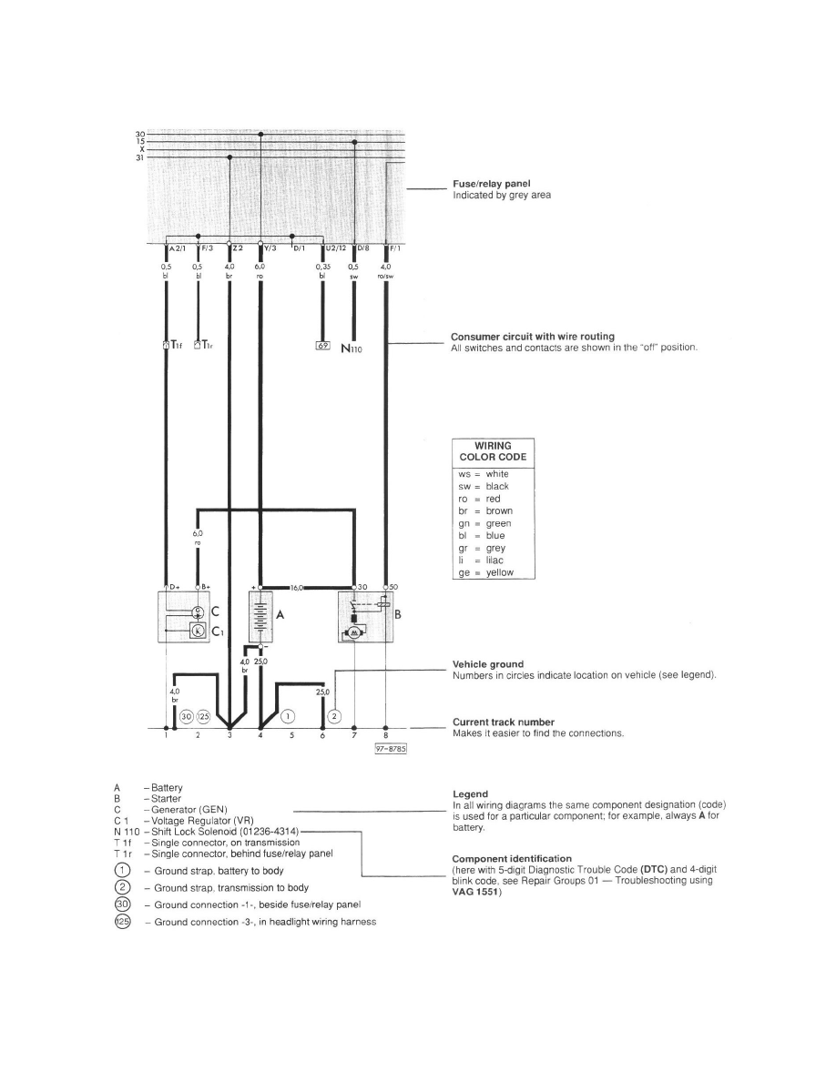
Wiring Diagram Layout|Page 11607 > < Shift Interlock Relay|Locations
Page 1
background image

Shift Interlock Relay: Diagram Information and Instructions
Wiring Diagram Layout

Wiring Diagram Layout

Wiring Diagram Layout|Page 11607 > < Shift Interlock Relay|Locations