audi Workshop Repair Guides

Audi Workshop Service and Repair Manuals

Wiring Diagram Layout|Page 13082 > < Traction Control Relay|Locations|Page 13075
Page 1
background image

Brake Fluid Level Sensor/Switch: Diagram Information and Instructions
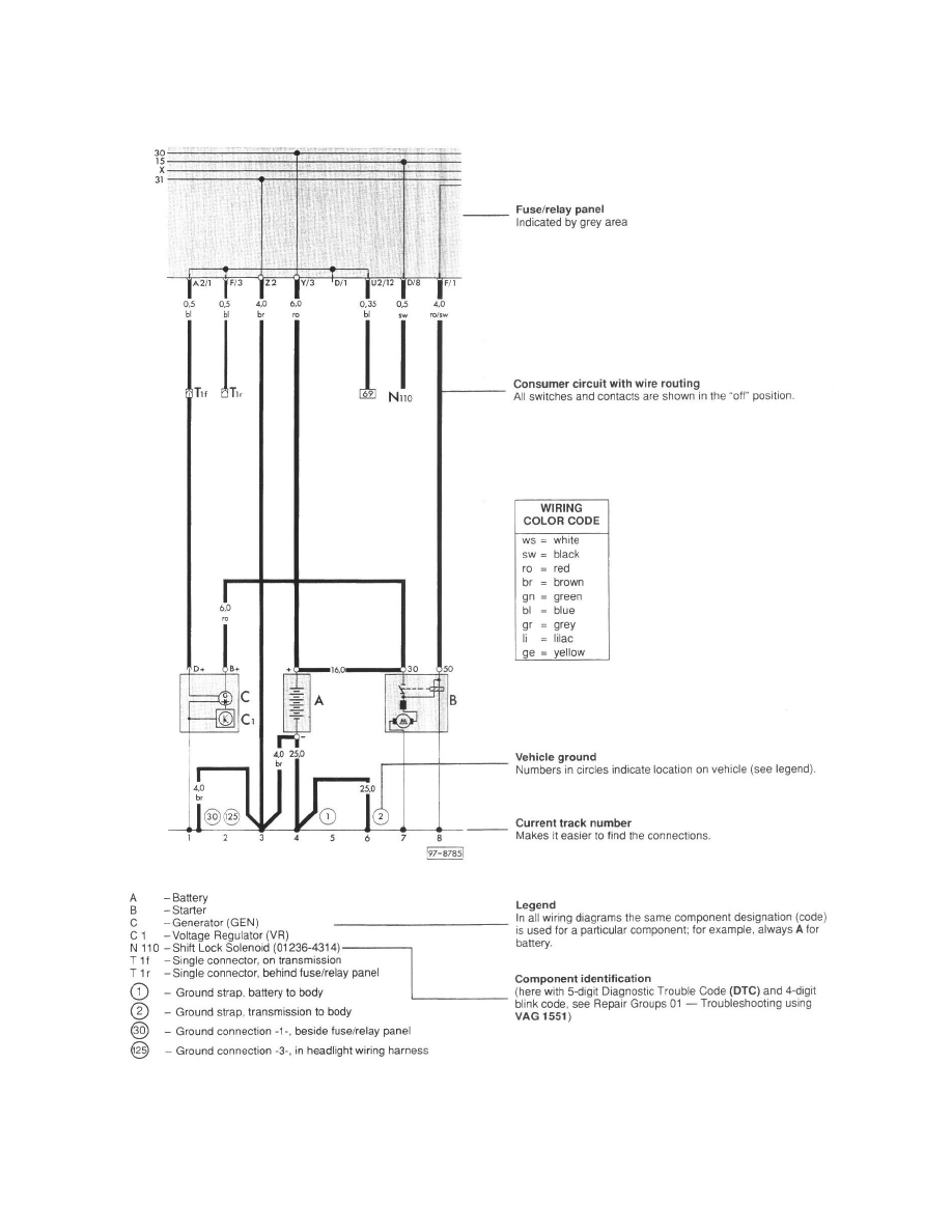
Wiring Diagram Layout

Wiring Diagram Layout

Wiring Diagram Layout|Page 13082 > < Traction Control Relay|Locations|Page 13075