Audi Workshop Service and Repair Manuals
HOME
FEATURES
MENU
INDEX
ABOUT US
Wiring Diagram Layout|Page 24830 >
< LED Test Light|Page 24823
A6 Quattro Sedan V8-4.2L (ART) (2000)
Lighting and Horns
Courtesy Lamp
Glove Box Lamp
Component Information
Diagrams
Diagram Information and Instructions
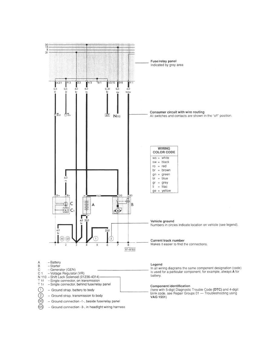
Wiring Diagram Layout
Page 1
Glove Box Lamp: Diagram Information and Instructions
Wiring Diagram Layout
Wiring Diagram Layout
Lighting and Horns
Courtesy Lamp
Glove Box Lamp
Component Information
Diagrams
Diagram Information and Instructions
Wiring Diagram Layout
Wiring Diagram Layout|Page 24830 >
< LED Test Light|Page 24823