A6 Quattro Sedan V8-4.2L (ART) (2000)
/Page-153001.png)
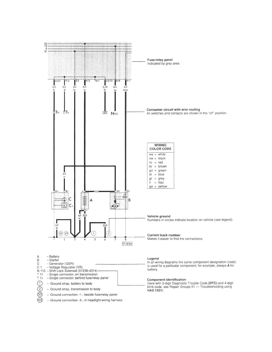
Sunroof / Moonroof Module: Diagram Information and Instructions
Wiring Diagram Layout
Wiring Diagram Layout
Sunroof / Moonroof Module: Diagram Information and Instructions
Wiring Diagram Layout
Wiring Diagram Layout