Audi Workshop Service and Repair Manuals
HOME
FEATURES
MENU
INDEX
ABOUT US
Wiring Diagram Layout|Page 24924 >
< Connector For Sender For Fuel Gauge -G-, Terminal Assignments|Page 24920
A6 Sedan V6-2.8L (ATQ) (2000)
Instrument Panel, Gauges and Warning Indicators
Sensors and Switches - Instrument Panel
Fuel Gauge Sender / Component Information
Diagrams
Diagram Information and Instructions
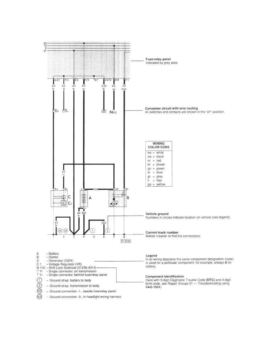
Wiring Diagram Layout
Page 1
Fuel Gauge Sender: Diagram Information and Instructions
Wiring Diagram Layout
Wiring Diagram Layout
Instrument Panel, Gauges and Warning Indicators
Sensors and Switches - Instrument Panel
Fuel Gauge Sender / Component Information
Diagrams
Diagram Information and Instructions
Wiring Diagram Layout
Wiring Diagram Layout|Page 24924 >
< Connector For Sender For Fuel Gauge -G-, Terminal Assignments|Page 24920