audi Workshop Repair Guides

Audi Workshop Service and Repair Manuals

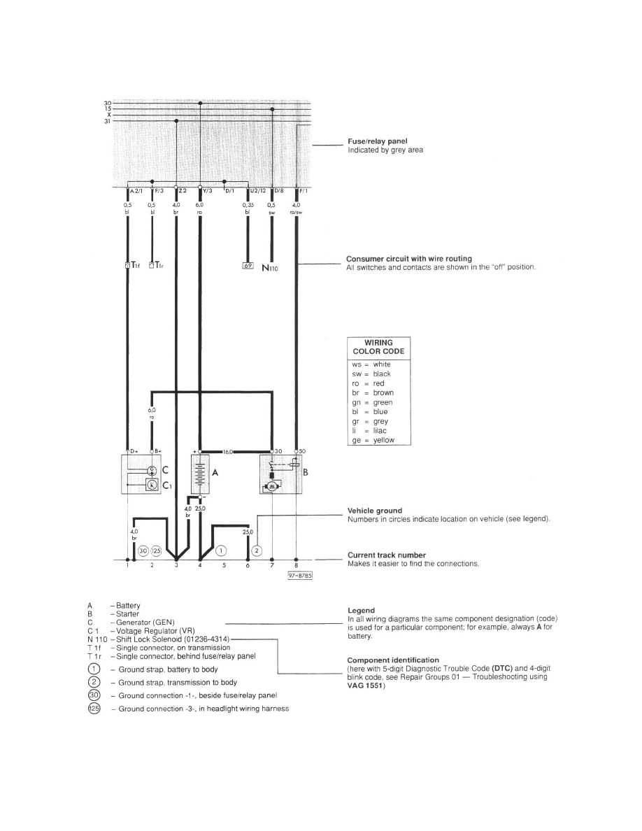
Wiring Diagram Layout|Page 5345 > < Driver's Window Regulator Switch, Removing and Installing|Page 5339
Page 1
background image

Electric Rear Window Sun Shade Switch: Diagram Information and Instructions
Wiring Diagram Layout

Wiring Diagram Layout

Wiring Diagram Layout|Page 5345 > < Driver's Window Regulator Switch, Removing and Installing|Page 5339