Q7 Quattro V6-3.6L (BHK) (2007)
/Page-8042001.png)
Power Seat Motor: Service and Repair
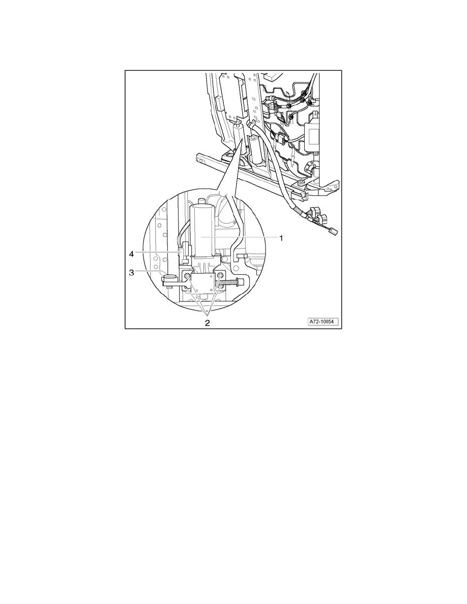
Drivers Seat Inclination Adjustment Motor V243 or V244
Drivers Seat Inclination Adjustment Motor V243 Or V244
1
-
Inclination adjustment motor
-
drivers side V243
-
passengers side V244
2
-
Screw
-
Tightening torque: 12 Nm
-
Qty. 4
3
-
Screw
-
Tightening torque: 20 Nm
4
-
Connector