3 Series E36 318is (M42) COUPE

65 99 ...
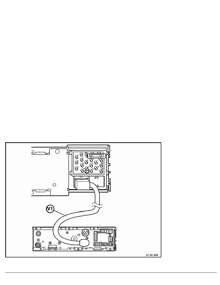
Checking connecting wires
Connecting wires must be checked for continuity and short circuit.
Procedures:
Unplug connecting wire on both ends.
Fit a short circuit bridge to the V1 or V2 line on the 12-pin
anodized connector on the operating unit (special tool
65 1 030). Measure at the other end with a multimeter and test
points, whether there is continuity between the various pins.
Remove short circuit bridge. There should no longer be continuity
between pins.
Proceed accordingly with the V3 wire. Only one other kind of short
circuit bridge is used (special tool 65 1 040).
RA Checking connecting wires
BMW AG - TIS
29.01.2013 19:02
Issue status (12/2007) Valid only until next DVD is issued
Copyright
Page - 1 -