3 Series E36 320i (M52) CONVER
65 99
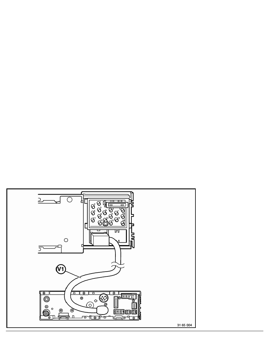
Checking connecting wires
Bavaria C4 is available in two versions, with or without CD
player.
Controls and receiver are separated from each other for
both versions. Controls are located in the dashboard as
always, while the receiver and when applicable CD player
are in the trunk. Because of this a connecting wire is
required from the controls to the receiver and CD player,
which later in the course of troubleshooting will be referred
to as V1 (without CD player) or V2 (with CD player).
Wires V1 and V2 only differ in length, because connecting
wire V2 leads from the controls to the CD player first and
from there together with V3 to the receiver.
Connecting wires must be checked for continuity and short
circuit.
Procedures:
Unplug connecting wire on both ends.
Fit a short circuit bridge to V1 or V2 line on 12-pin Elo
connector to control panel (special tool no. 65 1 030).
Measure at the other end with a multimeter and test points,
whether there is continuity between the various pins.
Remove short circuit bridge. There should no longer be
continuity between pins.
Proceed accordingly with the V3 wire. Only one other short
circuit bridge is used (special tool no. 65 1 040).
Routing of wires without CD player
RA Checking connecting wires
BMW AG - TIS
07.02.2013 09:18
Issue status (12/2007) Valid only until next DVD is issued
Copyright
Page - 1 -
