3 Series E36 M roadst (S52) ROADST
34 00 ...
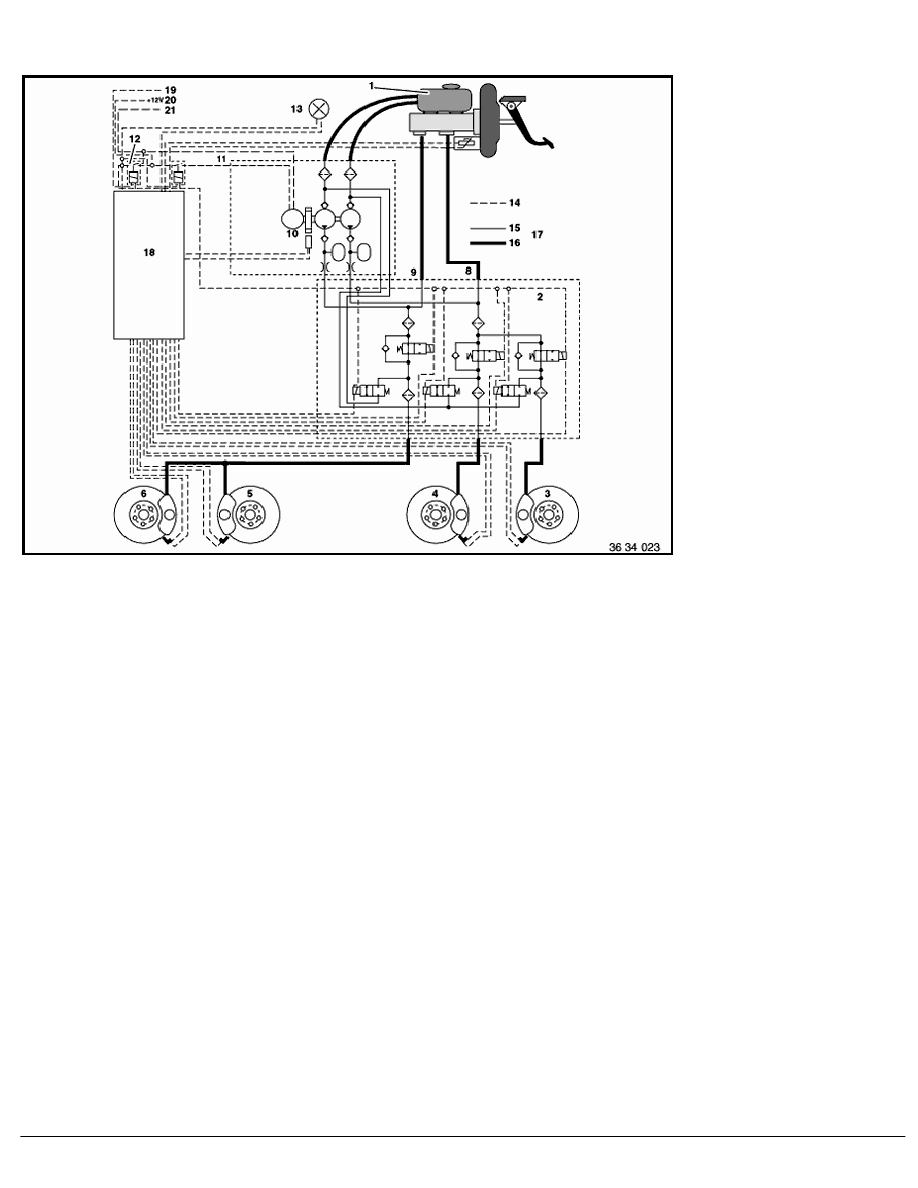
Teves Mark IV / 3 ABS Wiring Diagram
1
Vacuum brake booster
2
Hydraulic control unit
3
Wheel brake, front right
4
Wheel brake, front left
5
Wheel brake, rear left
6
Wheel brake, rear right
7
Not used
8
Push-rod circuit
9
Float circuit
10
Motor
11
Motor relay
12
Master relay
13
Sila - ABS
14
Electric wires
15
Internal wires
16
External wires
17
Hydraulic pipes
18
Electronic control unit
19
Ignition terminal 15
20
12 Volt operating voltage
21
Earth
RA Teves Mark IV / 3 ABS Wiring Diagram
BMW AG - TIS
09.02.2013 22:41
Issue status (12/2007) Valid only until next DVD is issued
Copyright
Page - 1 -
