bmw Workshop Repair Guides

BMW Workshop Service and Repair Manuals

1 SI Diagnosis Of Fuel Tank Systems With Fuel Tank Leak Diagnosis Module (DMTL) All U|Page 58 > < 2 SI Master Document For Emissions Test Nominal Values All Series Up To 2003
Page 1
background image

VS-23/Kuhn

Baugruppe/Group: 16

16 01 02 (890)

Weltweit
all countries

Datum/Date:
08/2002 
Update: 09/2003
Update: 09/2006

Diagnosis of fuel tank systems with fuel tank leak diagnosis module (DMTL)

All US models

Situation:

Since model year 1994, all US models have been equipped with a diagnosis-compatible
system that checks the fuel supply system for leaks.

A leaking fuel supply system causes increased pollutant emissions and, according to
American legislation, must be repaired immediately. The "Service Engine Soon" indicator
lamp lights up to alert the driver.

Systems for leak detection are tank systems with leak diagnosis pump (LDP) and fuel tank
leak diagnosis module (DMTL). These differ principally in the details listed in Table 1.

LDP

DMTL

Diaphragm pump

Vane pump

Vacuum line necessary for operation of the
diaphragm

Compression system

Leak detection from 

 1 mm

Leak detection from 

 0,5 mm

Leak detection at fuel tank by means of
external pressure application

Leak detection at fuel tank via test module
and/or service function

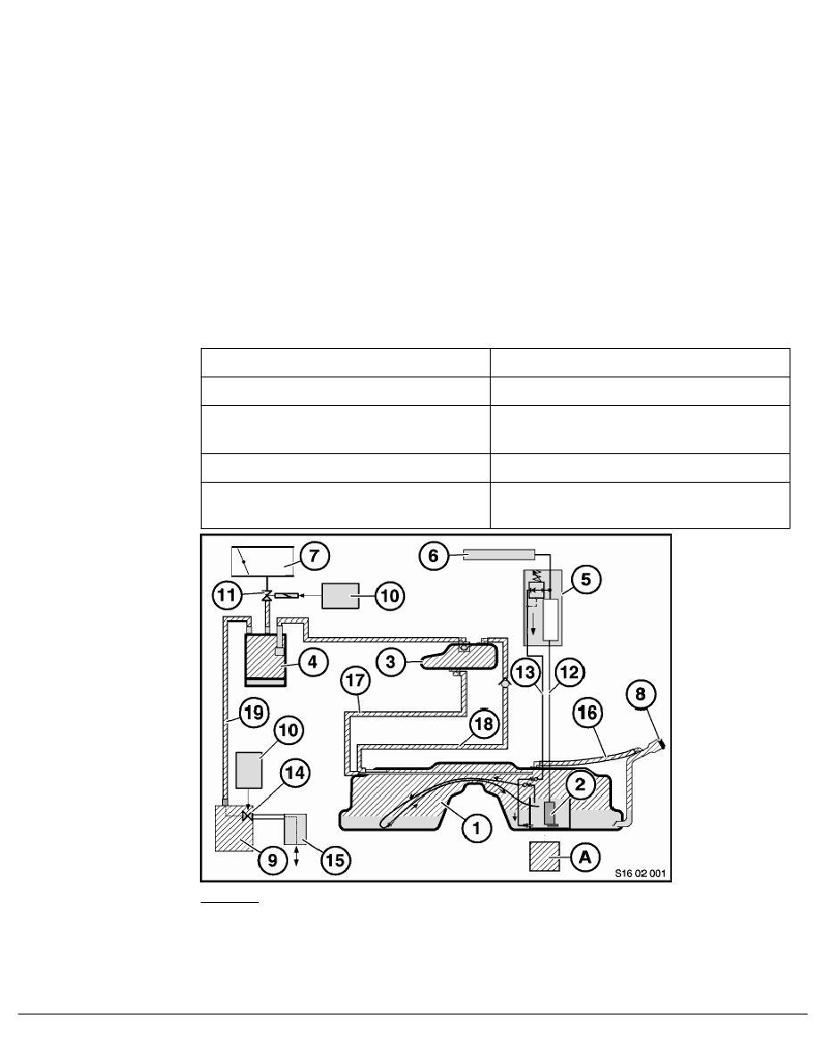
Figure 1: Block diagram of leak check

A

Pressurised components

10

DME control module

1

Tank

11

Fuel evaporation control valve

2

Fuel pump

12

Feed line

SI  Diagnosis of fuel tank systems with fuel tank leak diagnosis module (DMTL) All U

BMW AG - TIS

20.01.2013  07:56

Issue status (12/2007) Valid only until next DVD is issued

Copyright

Page  - 1 -

1 SI Diagnosis Of Fuel Tank Systems With Fuel Tank Leak Diagnosis Module (DMTL) All U|Page 58 > < 2 SI Master Document For Emissions Test Nominal Values All Series Up To 2003