Daewoo Workshop Service and Repair Manuals
HOME
FEATURES
MENU
INDEX
ABOUT US
Diagram Information and Instructions|Page 2911 >
< Diagram Information and Instructions|Page 2906
Lanos SE Hatchback L4-1.6L DOHC D-TEC MFI (1999)
Brakes and Traction Control
Antilock Brakes / Traction Control Systems
ABS Light Relay
Component Information
Diagrams
Diagram Information and Instructions
Page 1
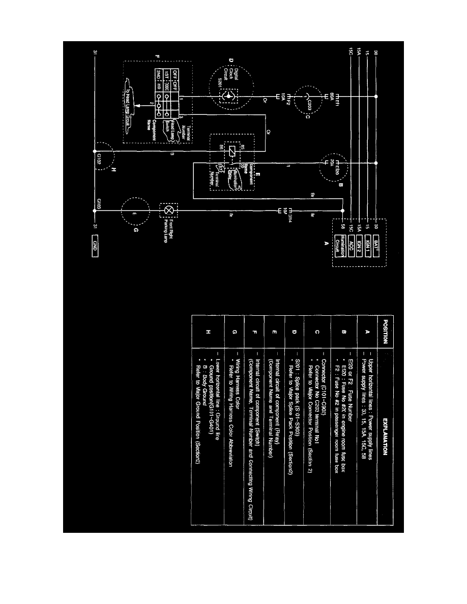
ABS Light Relay: Diagram Information and Instructions
Brakes and Traction Control
Antilock Brakes / Traction Control Systems
ABS Light Relay
Component Information
Diagrams
Diagram Information and Instructions
Diagram Information and Instructions|Page 2911 >
< Diagram Information and Instructions|Page 2906