Daewoo Workshop Service and Repair Manuals
HOME
FEATURES
MENU
INDEX
ABOUT US
Diagram Information and Instructions|Page 3016 >
< Brake Pedal Assy|Specifications|Page 3011
Lanos SE Hatchback L4-1.6L DOHC D-TEC MFI (1999)
Brakes and Traction Control
Brake Warning Indicator
Component Information
Diagrams
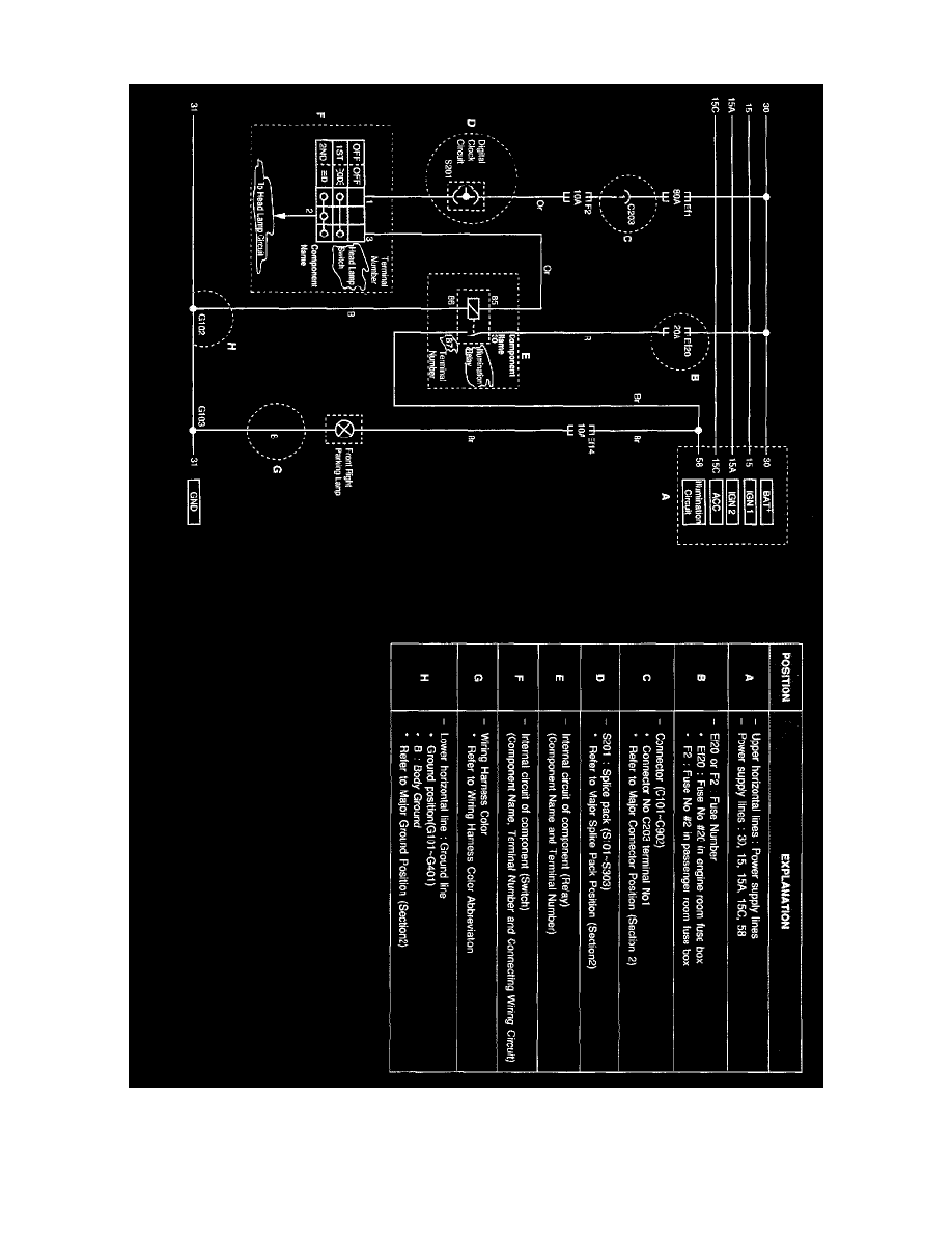
Diagram Information and Instructions
Page 1
Brake Warning Indicator: Diagram Information and Instructions
Brakes and Traction Control
Brake Warning Indicator
Component Information
Diagrams
Diagram Information and Instructions
Diagram Information and Instructions|Page 3016 >
< Brake Pedal Assy|Specifications|Page 3011