Dodge Workshop Service and Repair Manuals
HOME
FEATURES
MENU
INDEX
ABOUT US
Diagram Information and Instructions|Page 6025 >
< Diagram Information and Instructions|Page 6023
Challenger V6-3.5L (2009)
Power and Ground Distribution
Fuse Block / Diagrams
Page 6024
Page 2
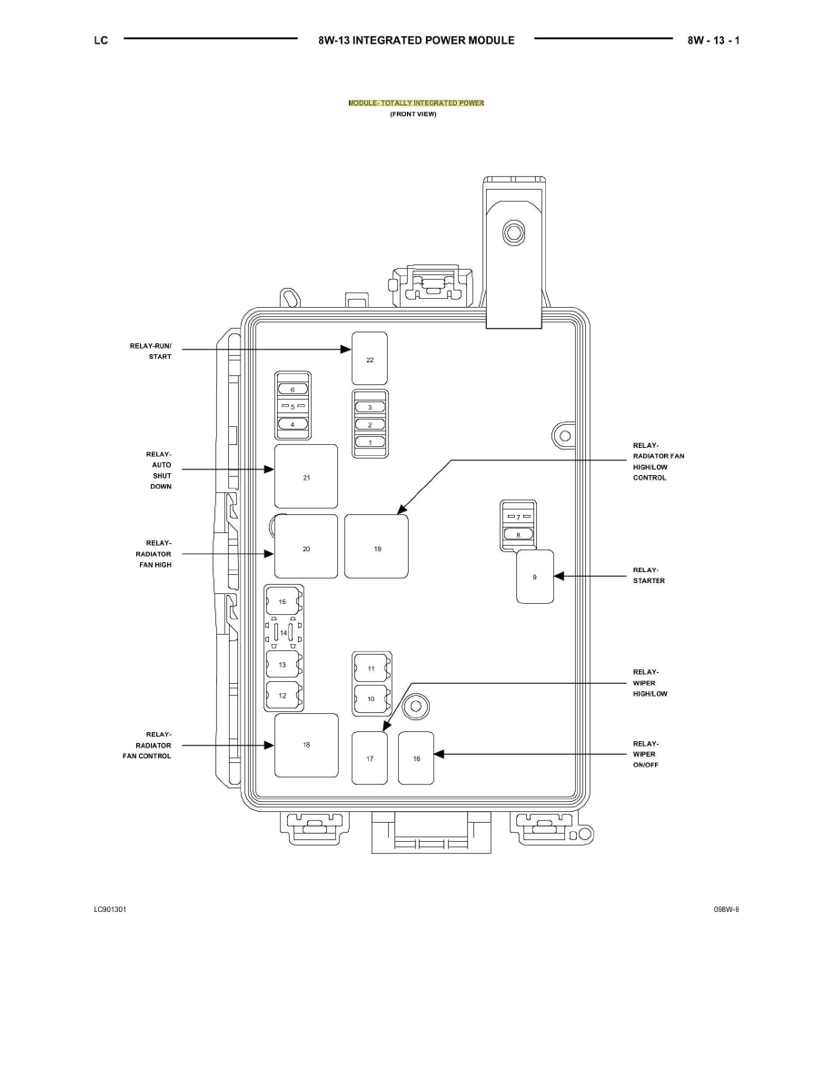
Integrated Power Module 8W-13-01
Power and Ground Distribution
Fuse Block / Diagrams
Page 6024
Diagram Information and Instructions|Page 6025 >
< Diagram Information and Instructions|Page 6023