Dodge Workshop Service and Repair Manuals
HOME
FEATURES
MENU
INDEX
ABOUT US
Diagram Information and Instructions|Page 5807 >
< Diagram Information and Instructions|Page 5805
Challenger V6-3.5L (2009)
Starting and Charging
Power and Ground Distribution
Fuse Block / Diagrams
Page 5806
Page 2
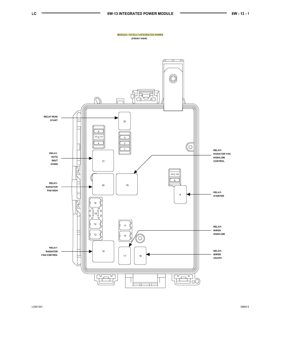
Integrated Power Module 8W-13-01
Starting and Charging
Power and Ground Distribution
Fuse Block / Diagrams
Page 5806
Diagram Information and Instructions|Page 5807 >
< Diagram Information and Instructions|Page 5805