Dodge Workshop Service and Repair Manuals
HOME
FEATURES
MENU
INDEX
ABOUT US
Junction Block|Page 166 >
< Junction Block|Page 164
RAM 3500 Truck 2WD V10-8.0L VIN W HDC (2000)
Relays and Modules
Relays and Modules - Power and Ground Distribution / Relay Box / Component Information
Application and ID / Junction Block
Page 165
Page 1
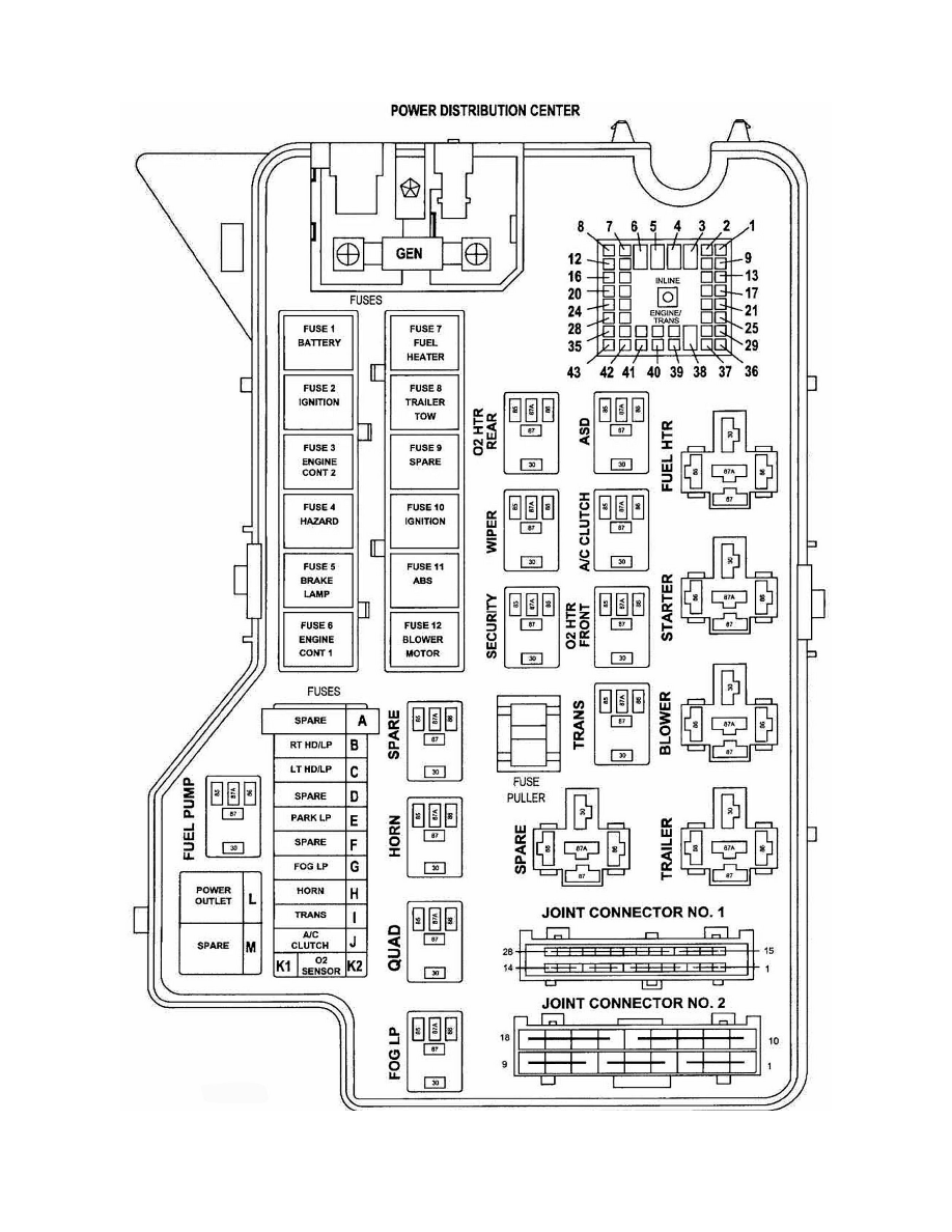
Relay Box: Application and ID
Power Distribution Center
Relays and Modules
Relays and Modules - Power and Ground Distribution / Relay Box / Component Information
Application and ID / Junction Block
Page 165
Junction Block|Page 166 >
< Junction Block|Page 164