Ford Workshop Service and Repair Manuals
HOME
FEATURES
MENU
INDEX
ABOUT US
Diagram Information and Instructions|Page 4184 >
< Diagram Information and Instructions|Page 4182
Crown Victoria V8-4.6L Flex Fuel (2008)
Starting and Charging
Power and Ground Distribution
Fuse Block / Component Information
Diagrams / Diagram Information and Instructions
Page 4183
Page 7
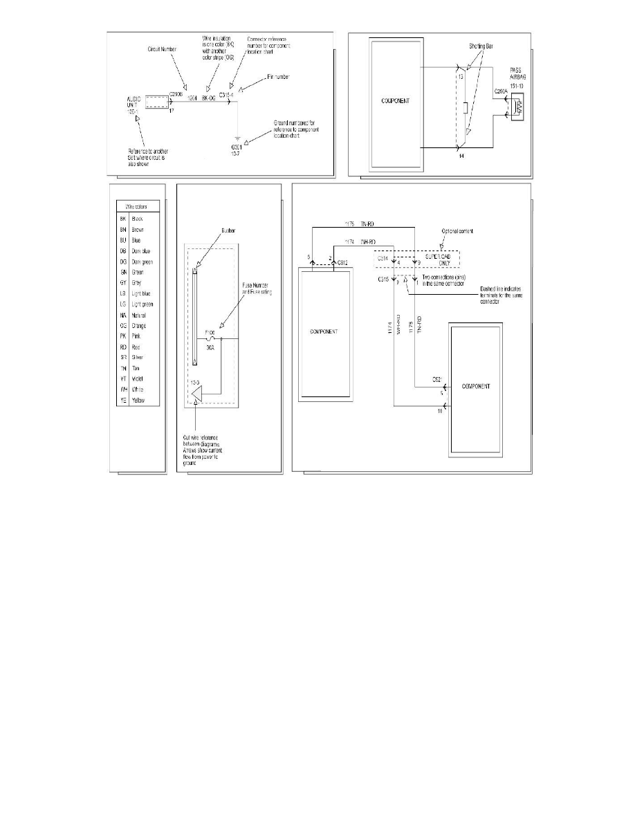
Symbols (Part 3)
Starting and Charging
Power and Ground Distribution
Fuse Block / Component Information
Diagrams / Diagram Information and Instructions
Page 4183
Diagram Information and Instructions|Page 4184 >
< Diagram Information and Instructions|Page 4182