Econoline E250 3/4 Ton V8-4.6L SOHC VIN W (2000)
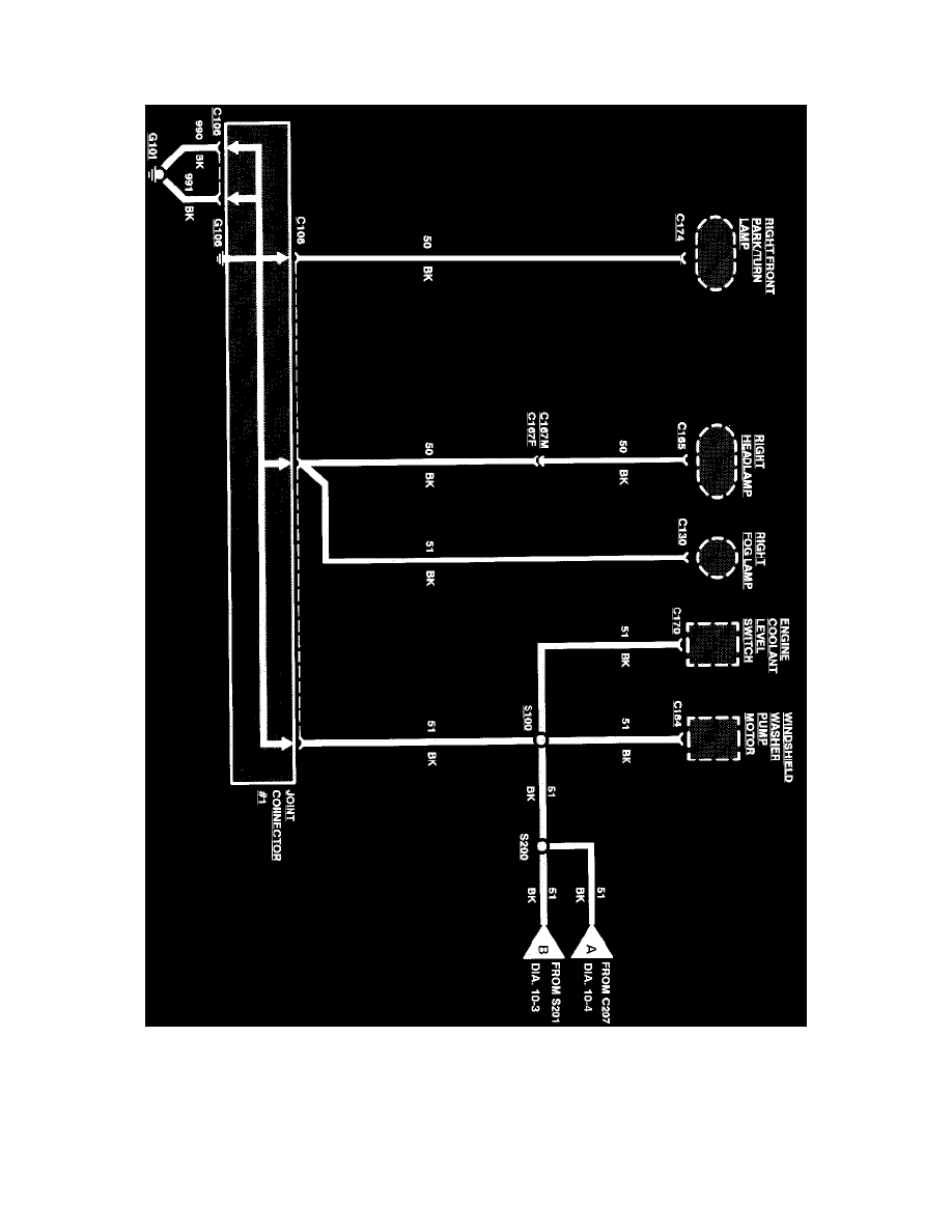
Diagram 10-1 (Sample Grounds Diagram Page)
Grounds Diagrams
Provide the circuit details of how the system diagrams are grounded. This information is useful for checking interconnections of the grounding circuits
of different systems. The components/systems being grounded are shown at the top of a diagram page. All wires, connectors, and splices are shown in the
same manner that the current flows, ending at the ground at the bottom of a diagram page. Circuits that go from one diagram page to another will be
marked with large arrow heads indicating which diagram page the circuit went to/came from.
