Ford Workshop Service and Repair Manuals
HOME
FEATURES
MENU
INDEX
ABOUT US
Diagram Information and Instructions|Page 7231 >
< Diagram Information and Instructions|Page 7229
Explorer 4WD V6-4.0L (2009)
Accessories and Optional Equipment
Towing / Trailer System
Trailer Lamps / Diagrams / Diagram Information and Instructions
Page 7230
Page 8
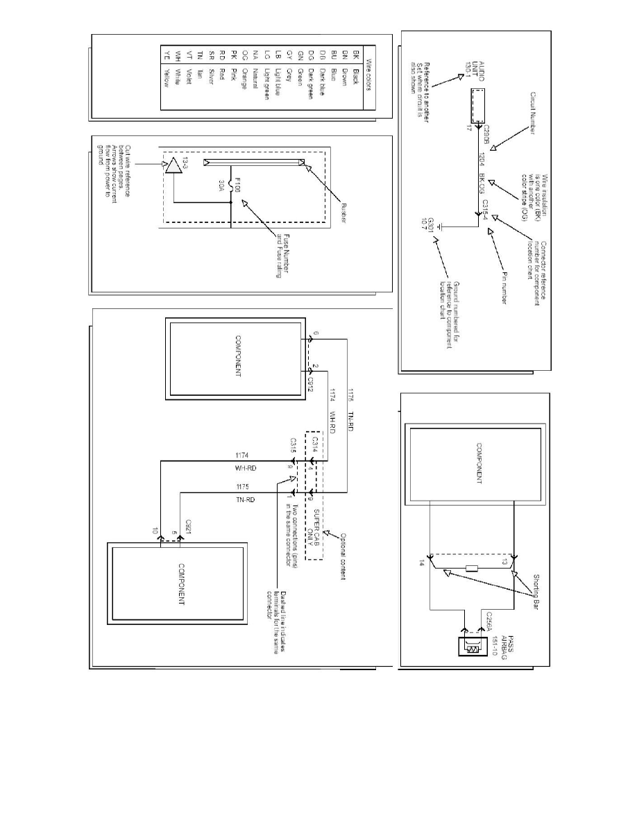
Symbols (Part 3)
Accessories and Optional Equipment
Towing / Trailer System
Trailer Lamps / Diagrams / Diagram Information and Instructions
Page 7230
Diagram Information and Instructions|Page 7231 >
< Diagram Information and Instructions|Page 7229