Ford Workshop Service and Repair Manuals
HOME
FEATURES
MENU
INDEX
ABOUT US
Diagram Information and Instructions|Page 6858 >
< Diagram Information and Instructions|Page 6856
Explorer Sport Trac 2WD V6-4.0L (2009)
Accessories and Optional Equipment
Towing / Trailer System
Trailer Lamps / Diagrams / Diagram Information and Instructions
Page 6857
Page 9
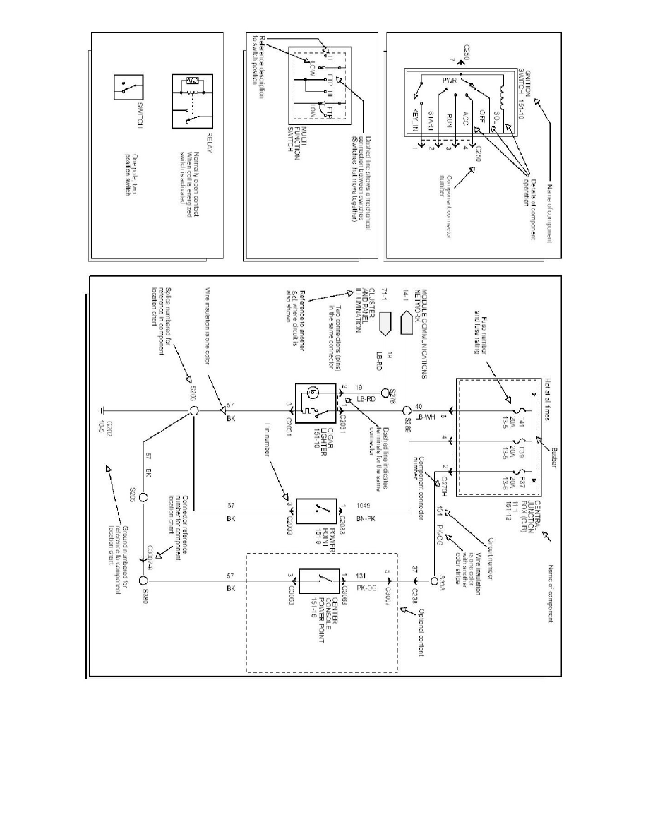
Symbols (Part 4)
Accessories and Optional Equipment
Towing / Trailer System
Trailer Lamps / Diagrams / Diagram Information and Instructions
Page 6857
Diagram Information and Instructions|Page 6858 >
< Diagram Information and Instructions|Page 6856