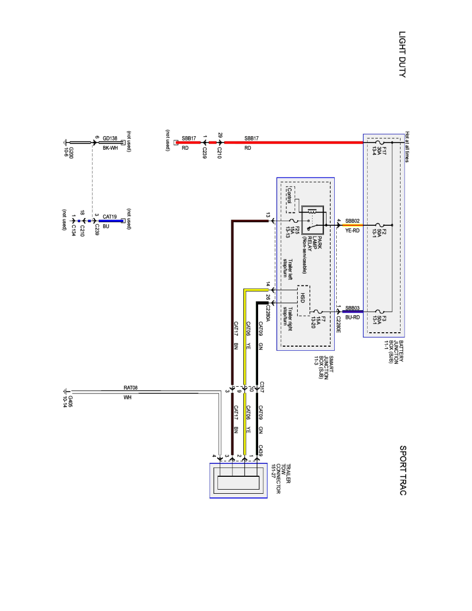
Explorer Sport Trac 4WD V6-4.0L (2009)
95-3
Diagrams: Other diagrams referred to by number (i.e. 13-2, 24-6, 10-2, etc.) within these diagrams can be found at Diagrams By Number. See:
Diagrams/Electrical Diagrams/Diagrams By Number
Locations: Location Views (reference numbers starting with 151-) referred to within these diagrams can be found at Location Views. See:
Locations/Component Locations
