Ford Workshop Service and Repair Manuals
HOME
FEATURES
MENU
INDEX
ABOUT US
Battery Junction Box (BJB)|Page 4878 >
< Battery Junction Box (BJB)|Page 4875
Taurus X AWD V6-3.5L (2009)
Power and Ground Distribution
Relay Box / Component Information
Application and ID
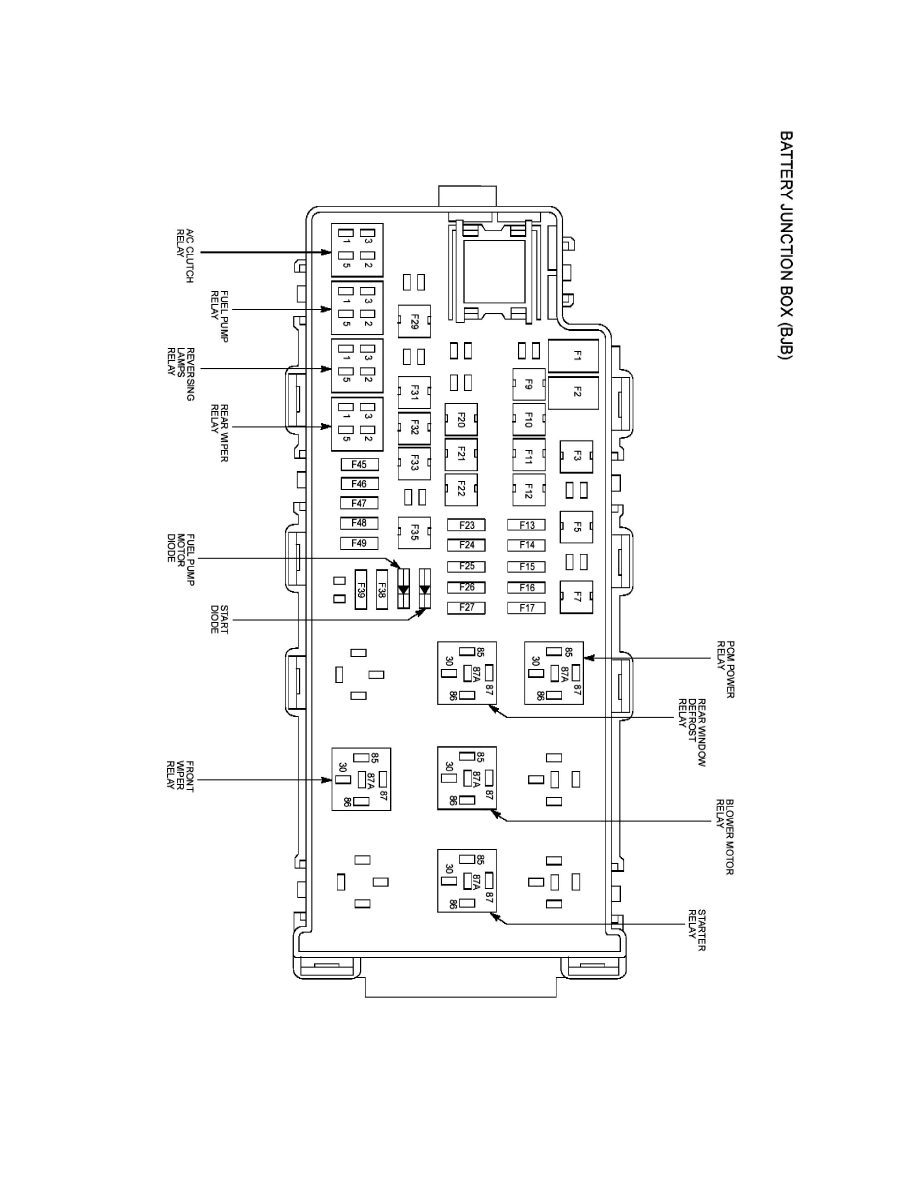
Battery Junction Box (BJB)
Page 1
Relay Box: Application and ID
Battery Junction Box (BJB)
Power and Ground Distribution
Relay Box / Component Information
Application and ID
Battery Junction Box (BJB)
Battery Junction Box (BJB)|Page 4878 >
< Battery Junction Box (BJB)|Page 4875