Jeep Workshop Service and Repair Manuals
HOME
FEATURES
MENU
INDEX
ABOUT US
Relay Box|Locations|Page 4181 >
< Diagram Information and Instructions|Page 4176
Cherokee 2WD L6-4.0L VIN S (1998)
Starting and Charging
Power and Ground Distribution
Relays and Modules - Power and Ground Distribution
Relay Box
Component Information
Locations
Page 1
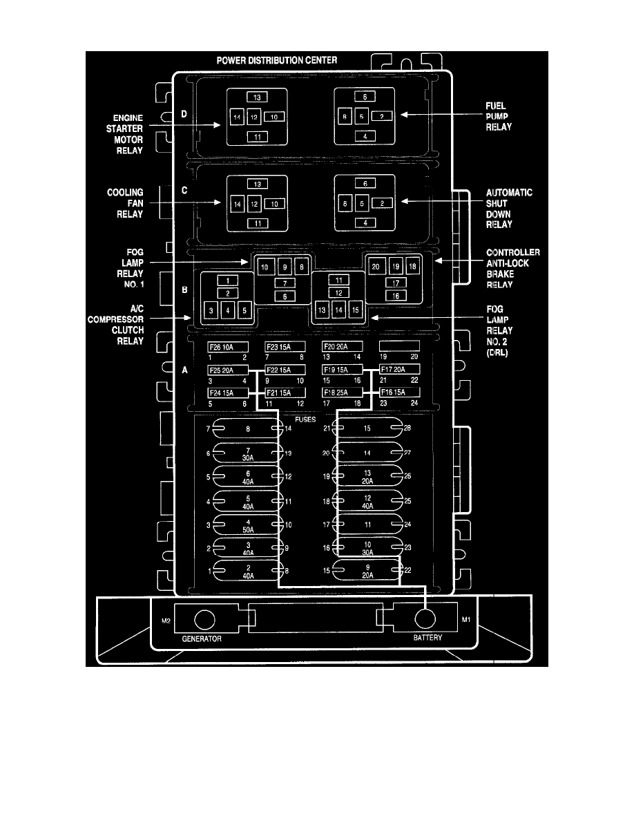
Relay Box: Locations
Power Distribution
Starting and Charging
Power and Ground Distribution
Relays and Modules - Power and Ground Distribution
Relay Box
Component Information
Locations
Relay Box|Locations|Page 4181 >
< Diagram Information and Instructions|Page 4176