Jeep Workshop Service and Repair Manuals
HOME
FEATURES
MENU
INDEX
ABOUT US
Trunk / Liftgate Relay >
< Seat Heater Control Module|Removal|Page 10541
Grand Cherokee 2WD V6-3.7L (2008)
Body and Frame
Relays and Modules - Body and Frame
Trailer Towing Relay
Component Information
Locations
Page 1
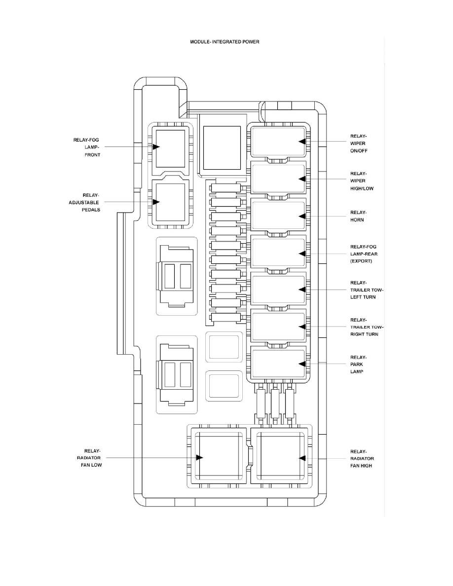
Trailer Towing Relay: Locations
Body and Frame
Relays and Modules - Body and Frame
Trailer Towing Relay
Component Information
Locations
Trunk / Liftgate Relay >
< Seat Heater Control Module|Removal|Page 10541