Land Rover Workshop Service and Repair Manuals
HOME
FEATURES
MENU
INDEX
ABOUT US
DESCRIPTION|Page 1407 >
< DESCRIPTION|Page 1405
Range Rover P38
82 - AIR CONDITIONING
DESCRIPTION AND OPERATION / scription/">DESCRIPTION
Page 1406
Page 1155
82
AIR CONDITIONING
NEW RANGE ROVER
10
DESCRIPTION AND OPERATION
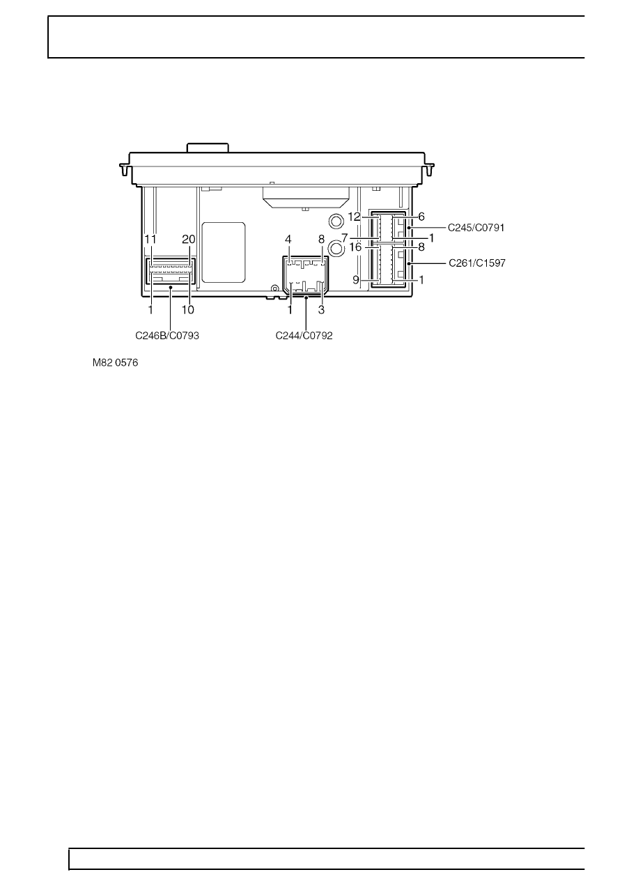
ATC ECU connectors
82 - AIR CONDITIONING
DESCRIPTION AND OPERATION / scription/">DESCRIPTION
Page 1406
DESCRIPTION|Page 1407 >
< DESCRIPTION|Page 1405