Mercedes Benz Workshop Service and Repair Manuals
HOME
FEATURES
MENU
INDEX
ABOUT US
Exterior Mirror Operating Problem|Page 5664 >
< Exterior Mirror Operating Problem|Page 5662
CL 500 (140.070) V8-5.0L (119.980) (1999)
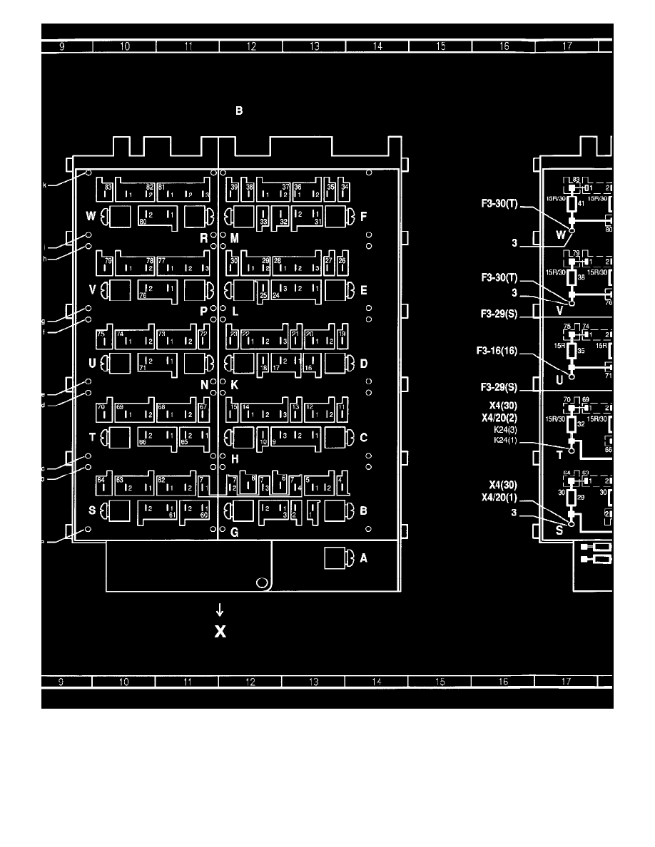
Power and Ground Distribution
Fuse / Technical Service Bulletins
Page 5663
Page 6
Power and Ground Distribution
Fuse / Technical Service Bulletins
Page 5663
Exterior Mirror Operating Problem|Page 5664 >
< Exterior Mirror Operating Problem|Page 5662