Mercedes Benz Workshop Service and Repair Manuals
HOME
FEATURES
MENU
INDEX
ABOUT US
Component Locations|Page 5710 >
< Component Locations|Page 5708
CL 500 (140.070) V8-5.0L (119.980) (1999)
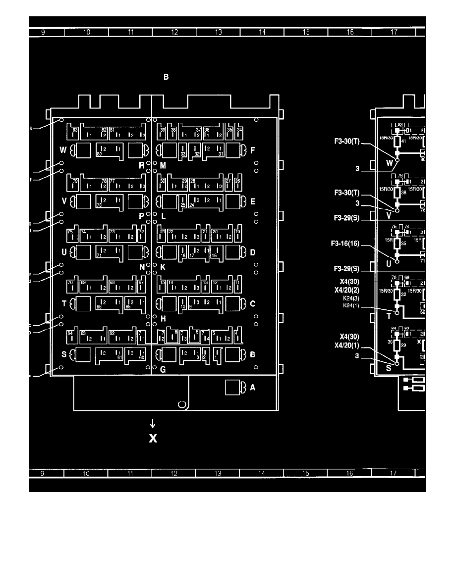
Power and Ground Distribution
Fuse Block / Component Locations
Page 5709
Page 6
Power and Ground Distribution
Fuse Block / Component Locations
Page 5709
Component Locations|Page 5710 >
< Component Locations|Page 5708