E 55 AMG Sedan (211.076) V8-5.5L SC (113.990) (2003)
Police / Special Vehicle Options: Description and Operation
GF82.25-P-0003T Emergency Alarm, Function
GF82.25-P-0003T Emergency Alarm, Function
- with CODE (934) Taxi emergency alarm unit
Component Identification
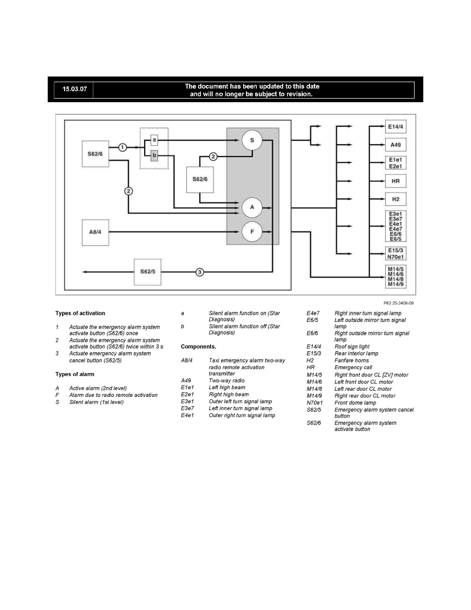
Emergency alarm system
The taxi emergency alarm system (Code 934) is a protective feature designed specifically for taxi drivers. This may be activated by the driver if he feels
threatened by other persons. Two types of alarm are available:
^
Silent Alarm (Stage 1)
^
Active Alarm (Stage 2)
Alarm actuation
This emergency alarm is triggered either using the emergency alarm system activate button (S62/6) taxi emergency or via the alarm two-way radio
remote activation transmitter (A8/4) . The taxi emergency alarm two-way radio remote activation transmitter (A8/4) always triggers the active alarm
mode . To prevent inadvertent activation, the taxi emergency alarm two-way radio remote activation transmitter (A8/4) must be pressed twice within 3
seconds to trigger the system
Depending on the version code entered in the multifunction control unit for special-purpose vehicles (SVMCU [MSS]) (N26/9) no there may be audible
