R 350 4MATIC (251.165) V6-3.5L (272.967) (2006)
/v6-3.5l_(272.967)/Page-3838001.png)
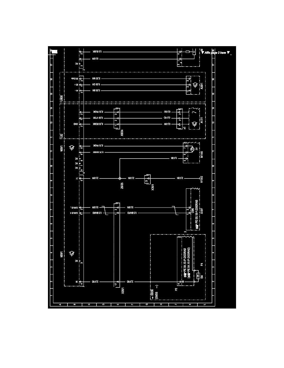
Door Module: Diagrams
Wiring Diagram For Left Front Door Control Unit (DCU) PE72.29-P-2101RAA
Wiring Diagram For Left Front Door Control Unit (DCU) PE72.29-P-2101RAA
- Control unit N69/1
Component Description/Coordinates, S20/1s9 To Z81/11