Mercedes Benz Workshop Service and Repair Manuals
HOME
FEATURES
MENU
INDEX
ABOUT US
Steering Column Control Module|Locations|Page 6806 >
< Steering Column Control Module|Locations|Page 6804
S 600 (220.176) V12-5.5L Turbo (275.960) (2005)
Steering and Suspension
Relays and Modules - Steering and Suspension / Relays and Modules - Steering / Steering Column Control Module / Locations
Page 6805
Page 4
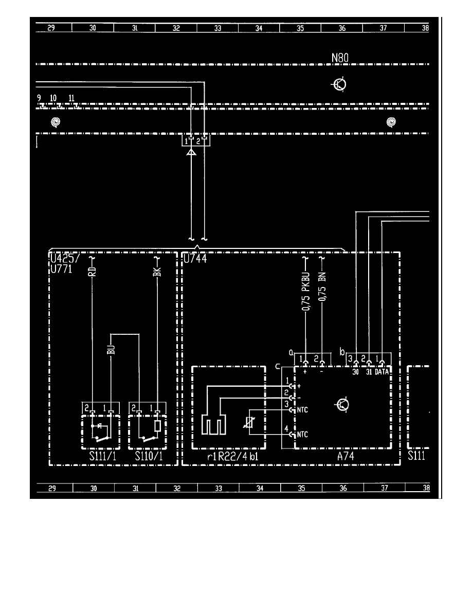
Steering Column Module Control Module
Steering and Suspension
Relays and Modules - Steering and Suspension / Relays and Modules - Steering / Steering Column Control Module / Locations
Page 6805
Steering Column Control Module|Locations|Page 6806 >
< Steering Column Control Module|Locations|Page 6804