mercedesbenz Workshop Repair Guides

Mercedes Benz Workshop Service and Repair Manuals

Door Control Module (DCM) Front Left PE72.29-U-2101KA|Page 15171 > < Door Control Module, Right|Page 15168
Page 1
background image

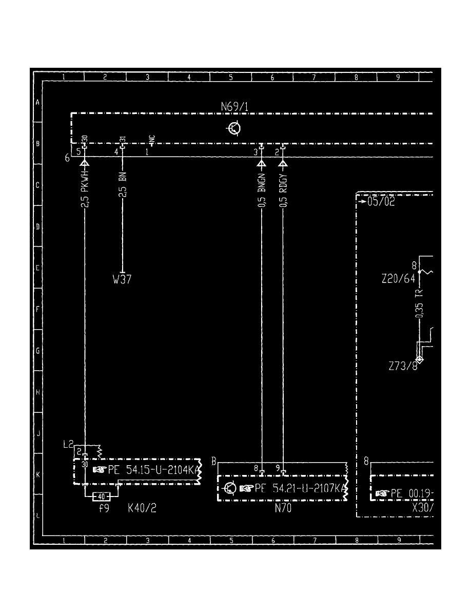
Door Module: Diagrams
Door Control Module (DCM) Front Left PE72.29-U-2101KA

Door Control Module (DCM) Front Left PE72.29-U-2101KA

Diagram, Part 1

Door Control Module (DCM) Front Left PE72.29-U-2101KA|Page 15171 > < Door Control Module, Right|Page 15168