mercury Workshop Repair Guides

Mercury Workshop Service and Repair Manuals

Smart Junction Box|Page 2140 > < Prove Out Procedure|Page 2134
Page 1
background image

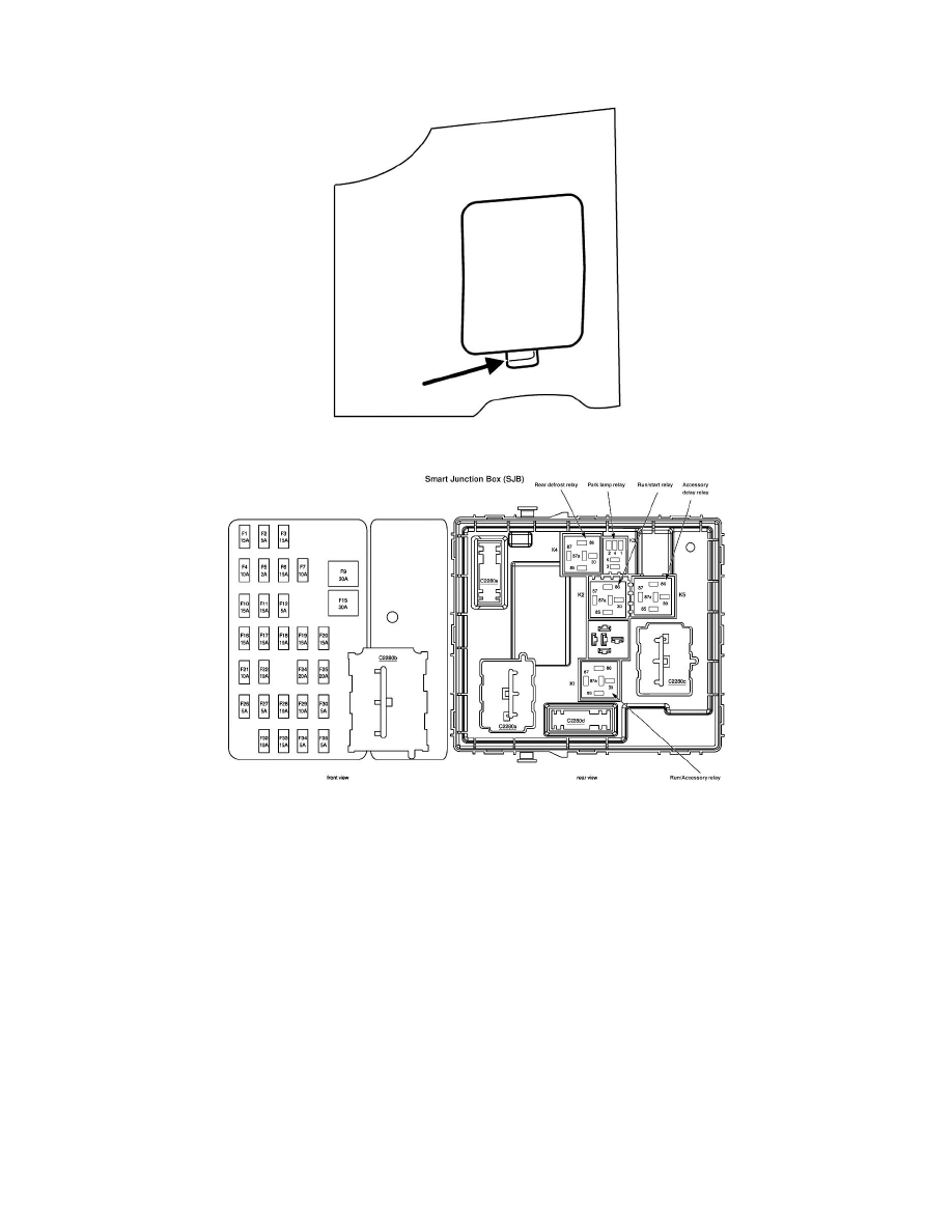
Fuse: Locations
Smart Junction Box

Note:  The fuse panel is located on the right-hand side of the center console, by the insturment panel. Remove the panel cover to access the fuses.

Smart Junction Box|Page 2140 > < Prove Out Procedure|Page 2134