Mariner 2WD V6-3.0L VIN 1 (2006)

Fuse: Application and ID
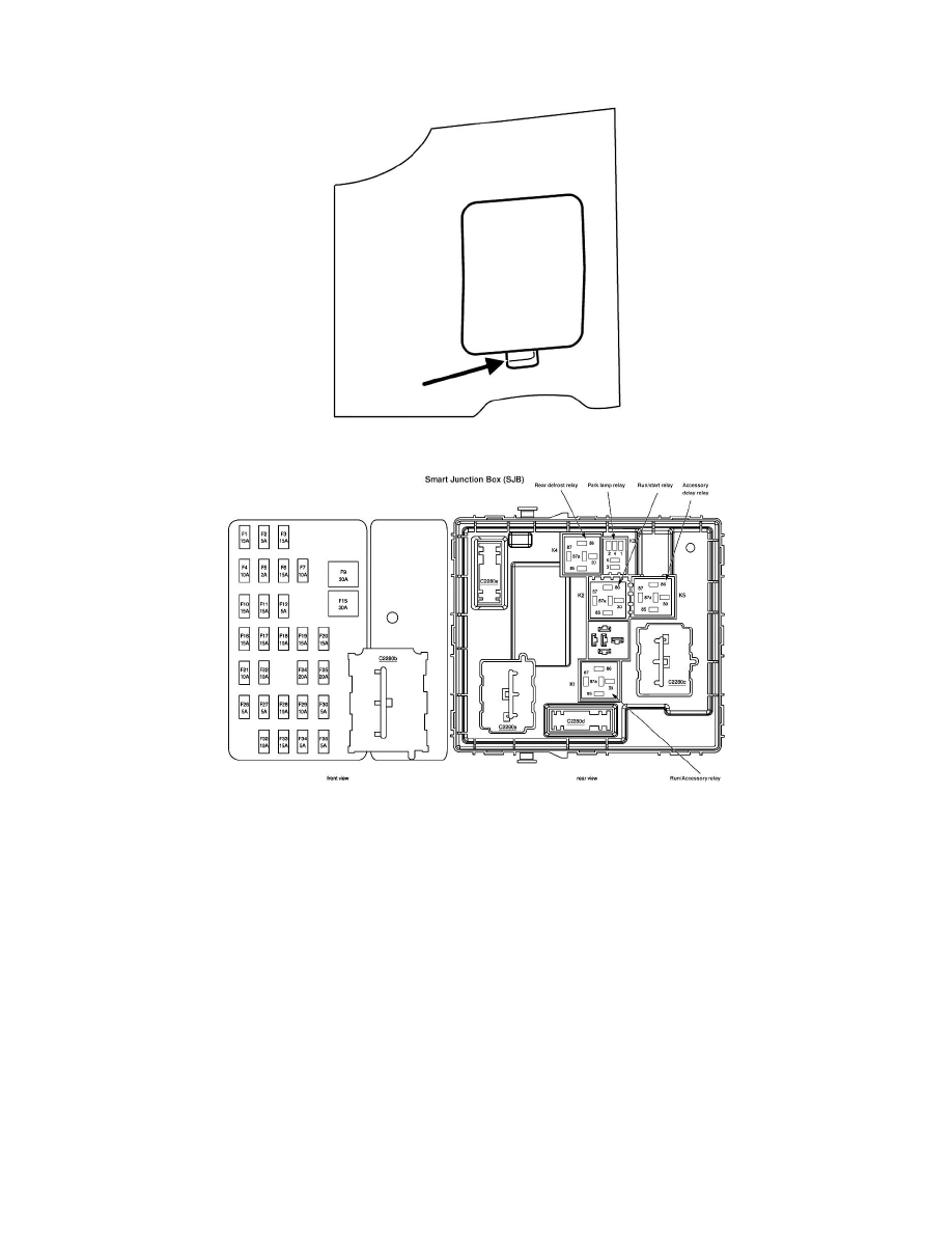
Smart Junction Box
Note: The fuse panel is located on the right-hand side of the center console, by the insturment panel. Remove the panel cover to access the fuses.
Fuse: Application and ID
Smart Junction Box
Note: The fuse panel is located on the right-hand side of the center console, by the insturment panel. Remove the panel cover to access the fuses.