mercury Workshop Repair Guides

Mercury Workshop Service and Repair Manuals

Smart Junction Box|Page 1010 > < Battery Junction Box (BJB)|Page 1007
Page 1
background image

Relay Box: Application and ID
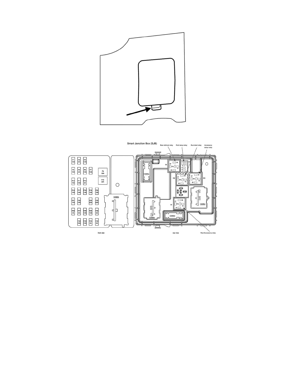
Smart Junction Box

Note:  The fuse panel is located on the right-hand side of the center console, by the insturment panel. Remove the panel cover to access the fuses.

Smart Junction Box|Page 1010 > < Battery Junction Box (BJB)|Page 1007