Mini Workshop Service and Repair Manuals
HOME
FEATURES
MENU
INDEX
ABOUT US
Diagram Information and Instructions|Page 1886 >
< Diagram Information and Instructions|Page 1884
Cooper Convertible (R57) L4-1.6L (N12) (2009)
Maintenance
Fuses and Circuit Breakers / Fuse / Component Information
Diagrams / Diagram Information and Instructions
Page 1885
Page 29
Part 3
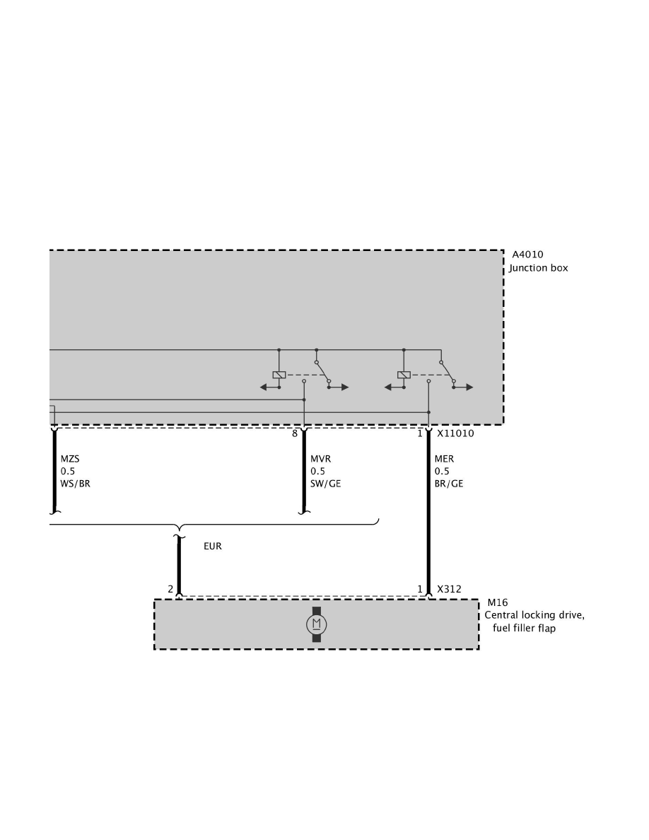
F10
Fuse F10
Maintenance
Fuses and Circuit Breakers / Fuse / Component Information
Diagrams / Diagram Information and Instructions
Page 1885
Diagram Information and Instructions|Page 1886 >
< Diagram Information and Instructions|Page 1884