Mini Workshop Service and Repair Manuals
HOME
FEATURES
MENU
INDEX
ABOUT US
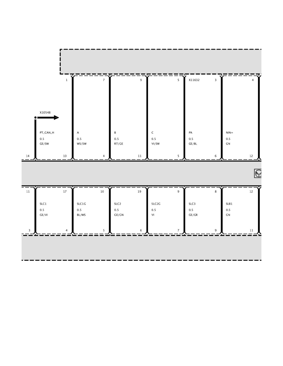
Diagram Information and Instructions|Page 5816 >
< Diagram Information and Instructions|Page 5814
Cooper JCW Clubman (R55) L4-1.6L Turbo (N14) (2009)
Transmission and Drivetrain
Transmission Control Systems / System Information
Diagrams / Diagram Information and Instructions
Page 5815
Page 2
Part 2
Transmission and Drivetrain
Transmission Control Systems / System Information
Diagrams / Diagram Information and Instructions
Page 5815
Diagram Information and Instructions|Page 5816 >
< Diagram Information and Instructions|Page 5814