Mini Workshop Service and Repair Manuals
HOME
FEATURES
MENU
INDEX
ABOUT US
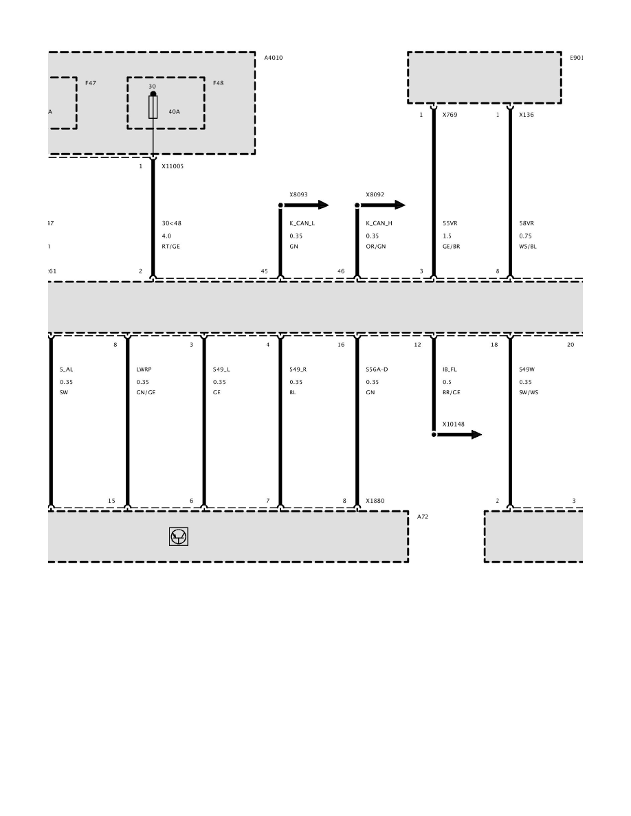
Diagram Information and Instructions|Page 11230 >
< Diagram Information and Instructions|Page 11228
Cooper S Clubman (R55) L4-1.6L Turbo (N14) (2008)
Body and Frame
Body Control Systems / Body Control Module / Component Information
Diagrams / Diagram Information and Instructions
Page 11229
Page 14
Part 2
Body and Frame
Body Control Systems / Body Control Module / Component Information
Diagrams / Diagram Information and Instructions
Page 11229
Diagram Information and Instructions|Page 11230 >
< Diagram Information and Instructions|Page 11228