Mini Workshop Service and Repair Manuals
HOME
FEATURES
MENU
INDEX
ABOUT US
Diagram Information and Instructions|Page 10277 >
< Diagram Information and Instructions|Page 10275
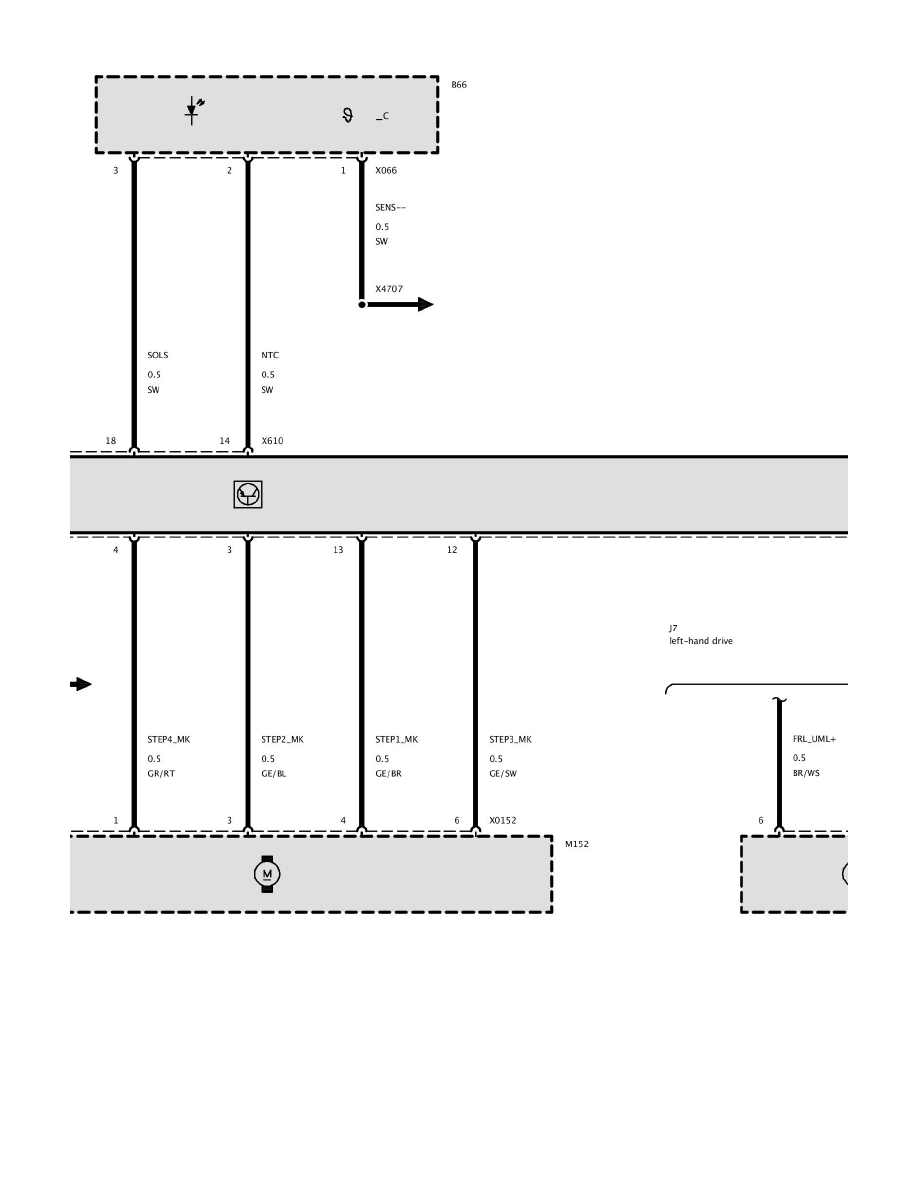
Cooper S Clubman (R55) L4-1.6L Turbo (N14) (2008)
Heating and Air Conditioning
Relays and Modules - HVAC
Control Module HVAC / Diagrams / Diagram Information and Instructions
Page 10276
Page 8
Part 3
Heating and Air Conditioning
Relays and Modules - HVAC
Control Module HVAC / Diagrams / Diagram Information and Instructions
Page 10276
Diagram Information and Instructions|Page 10277 >
< Diagram Information and Instructions|Page 10275