Mini Workshop Service and Repair Manuals
HOME
FEATURES
MENU
INDEX
ABOUT US
Diagram Information and Instructions|Page 9138 >
< Diagram Information and Instructions|Page 9136
Cooper S Clubman (R55) L4-1.6L Turbo (N14) (2008)
Power and Ground Distribution
Fuse / Component Information
Diagrams / Diagram Information and Instructions
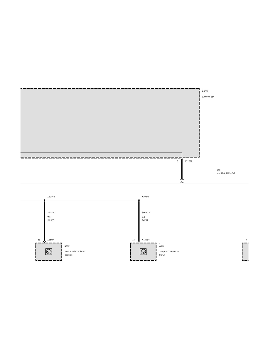
Page 9137
Page 40
Part 2
Power and Ground Distribution
Fuse / Component Information
Diagrams / Diagram Information and Instructions
Page 9137
Diagram Information and Instructions|Page 9138 >
< Diagram Information and Instructions|Page 9136