Mini Workshop Service and Repair Manuals
HOME
FEATURES
MENU
INDEX
ABOUT US
Diagram Information and Instructions|Page 9202 >
< Diagram Information and Instructions|Page 9200
Cooper S Clubman (R55) L4-1.6L Turbo (N14) (2008)
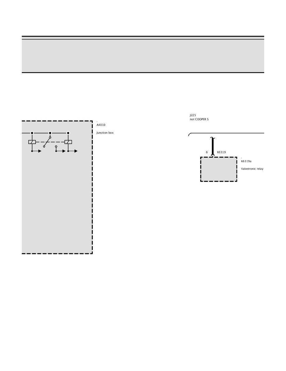
Power and Ground Distribution
Fuse / Component Information
Diagrams / Diagram Information and Instructions
Page 9201
Page 104
Part 5
Power and Ground Distribution
Fuse / Component Information
Diagrams / Diagram Information and Instructions
Page 9201
Diagram Information and Instructions|Page 9202 >
< Diagram Information and Instructions|Page 9200