Mini Workshop Service and Repair Manuals
HOME
FEATURES
MENU
INDEX
ABOUT US
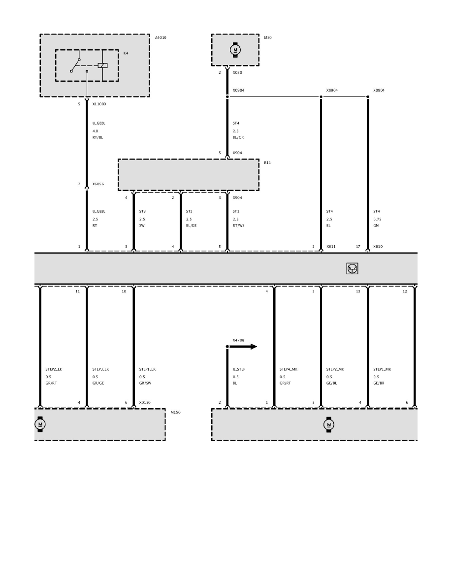
Diagram Information and Instructions|Page 9039 >
< Diagram Information and Instructions|Page 9037
Cooper S Convertible (R57) L4-1.6L Turbo (N14) (2009)
Heating and Air Conditioning
Relays and Modules - HVAC
Control Module HVAC / Diagrams / Diagram Information and Instructions
Page 9038
Page 3
Part 2
Heating and Air Conditioning
Relays and Modules - HVAC
Control Module HVAC / Diagrams / Diagram Information and Instructions
Page 9038
Diagram Information and Instructions|Page 9039 >
< Diagram Information and Instructions|Page 9037