Mini Workshop Service and Repair Manuals
HOME
FEATURES
MENU
INDEX
ABOUT US
Diagram Information and Instructions|Page 9042 >
< Diagram Information and Instructions|Page 9040
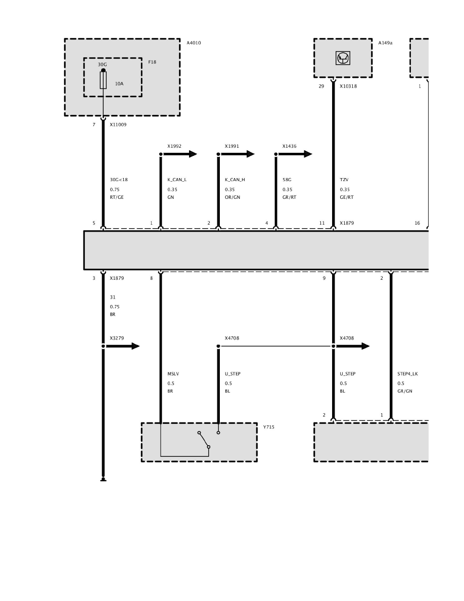
Cooper S Convertible (R57) L4-1.6L Turbo (N14) (2009)
Heating and Air Conditioning
Relays and Modules - HVAC
Control Module HVAC / Diagrams / Diagram Information and Instructions
Page 9041
Page 6
Part 1
Heating and Air Conditioning
Relays and Modules - HVAC
Control Module HVAC / Diagrams / Diagram Information and Instructions
Page 9041
Diagram Information and Instructions|Page 9042 >
< Diagram Information and Instructions|Page 9040