Pontiac Workshop Service and Repair Manuals
HOME
FEATURES
MENU
INDEX
ABOUT US
Marker Lamp >
< Diagram Information and Instructions|Page 6096
Grand AM L4-121 2.0L (1988)
Lighting and Horns
License Plate Lamp / Diagrams / Diagram Information and Instructions
Page 6097
Page 4
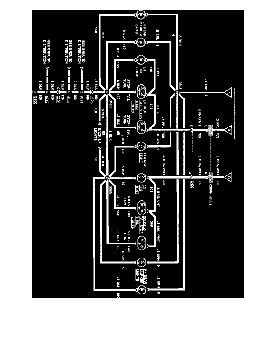
Front Marker, License, Park & Rear Marker (Part 2 Of 2), VIN NE and NV
Lighting and Horns
License Plate Lamp / Diagrams / Diagram Information and Instructions
Page 6097
Marker Lamp >
< Diagram Information and Instructions|Page 6096