Volkswagen Workshop Service and Repair Manuals
HOME
FEATURES
MENU
INDEX
ABOUT US
Diagram Information and Instructions|Page 4072 >
< Diagram Information and Instructions
Golf L4-1896cc 1.9L DSL Turbo (1Z) (1997)
Heating and Air Conditioning
Relays and Modules - HVAC / Control Module HVAC / Component Information
Diagrams / Diagram Information and Instructions
Page 4071
Page 2
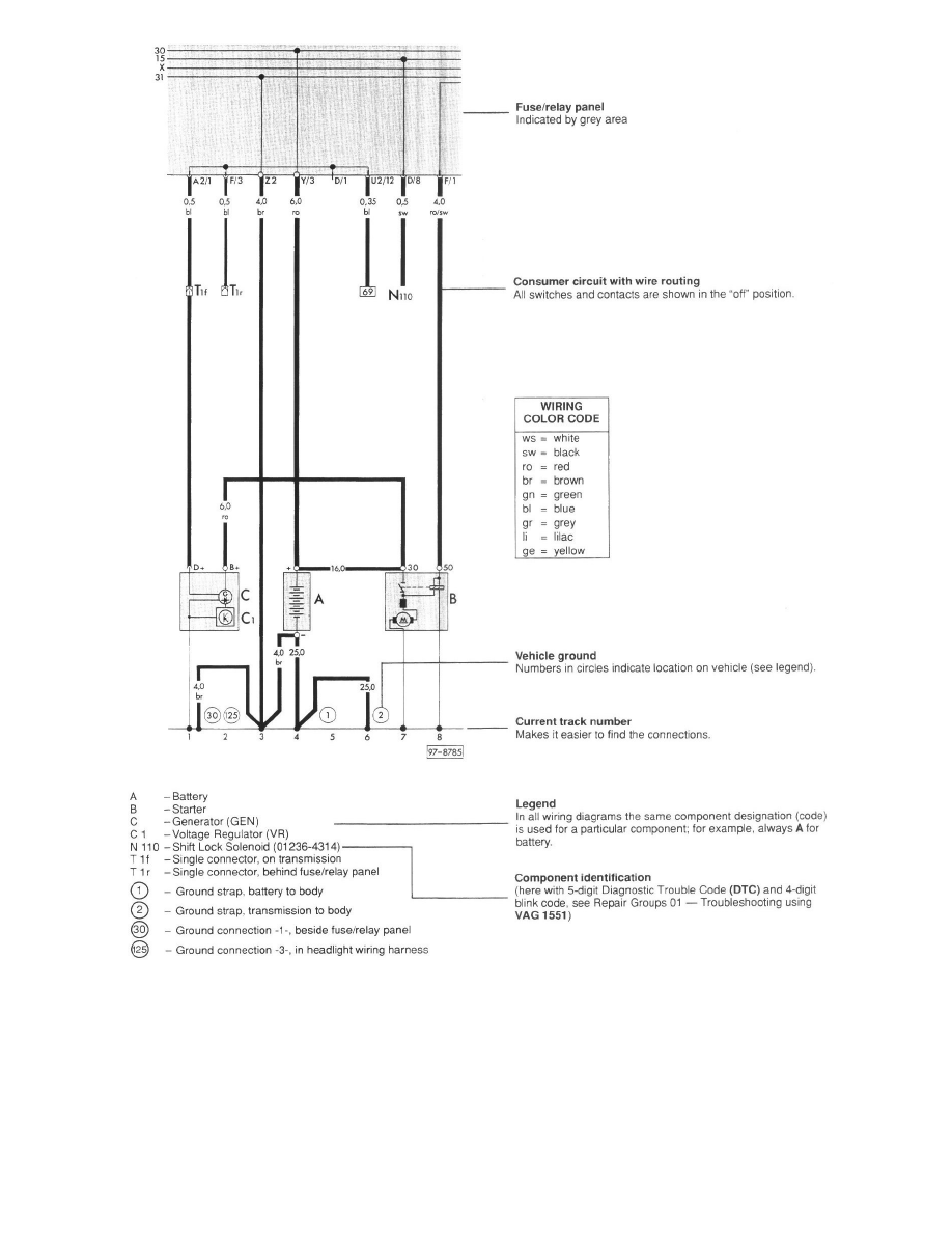
How to Use Track Diagrams
Heating and Air Conditioning
Relays and Modules - HVAC / Control Module HVAC / Component Information
Diagrams / Diagram Information and Instructions
Page 4071
Diagram Information and Instructions|Page 4072 >
< Diagram Information and Instructions