Volkswagen Workshop Service and Repair Manuals
HOME
FEATURES
MENU
INDEX
ABOUT US
Diagram Information and Instructions|Page 560 >
< Diagram Information and Instructions
GTI V6-2792cc 2.8L DOHC (AAA) (1996)
Sensors and Switches
Sensors and Switches - Brakes and Traction Control
Brake Pad Wear Sensor / Diagrams / Diagram Information and Instructions
Page 559
Page 2
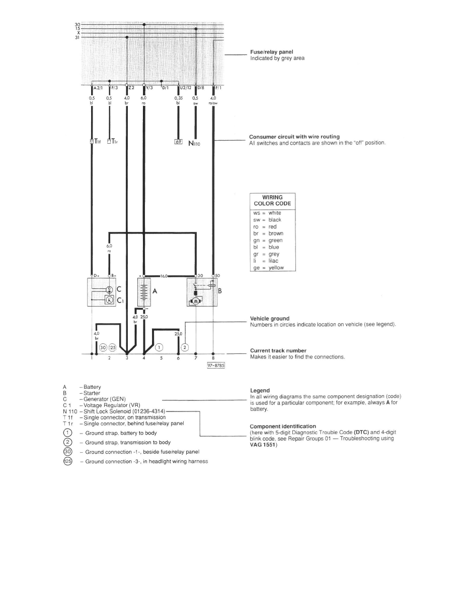
How to Use Track Diagrams
Sensors and Switches
Sensors and Switches - Brakes and Traction Control
Brake Pad Wear Sensor / Diagrams / Diagram Information and Instructions
Page 559
Diagram Information and Instructions|Page 560 >
< Diagram Information and Instructions